GM Service Manual Online
For 1990-2009 cars only
Makes
🢒
Chevrolet
🢒
2001
🢒
Tracker - 2WD
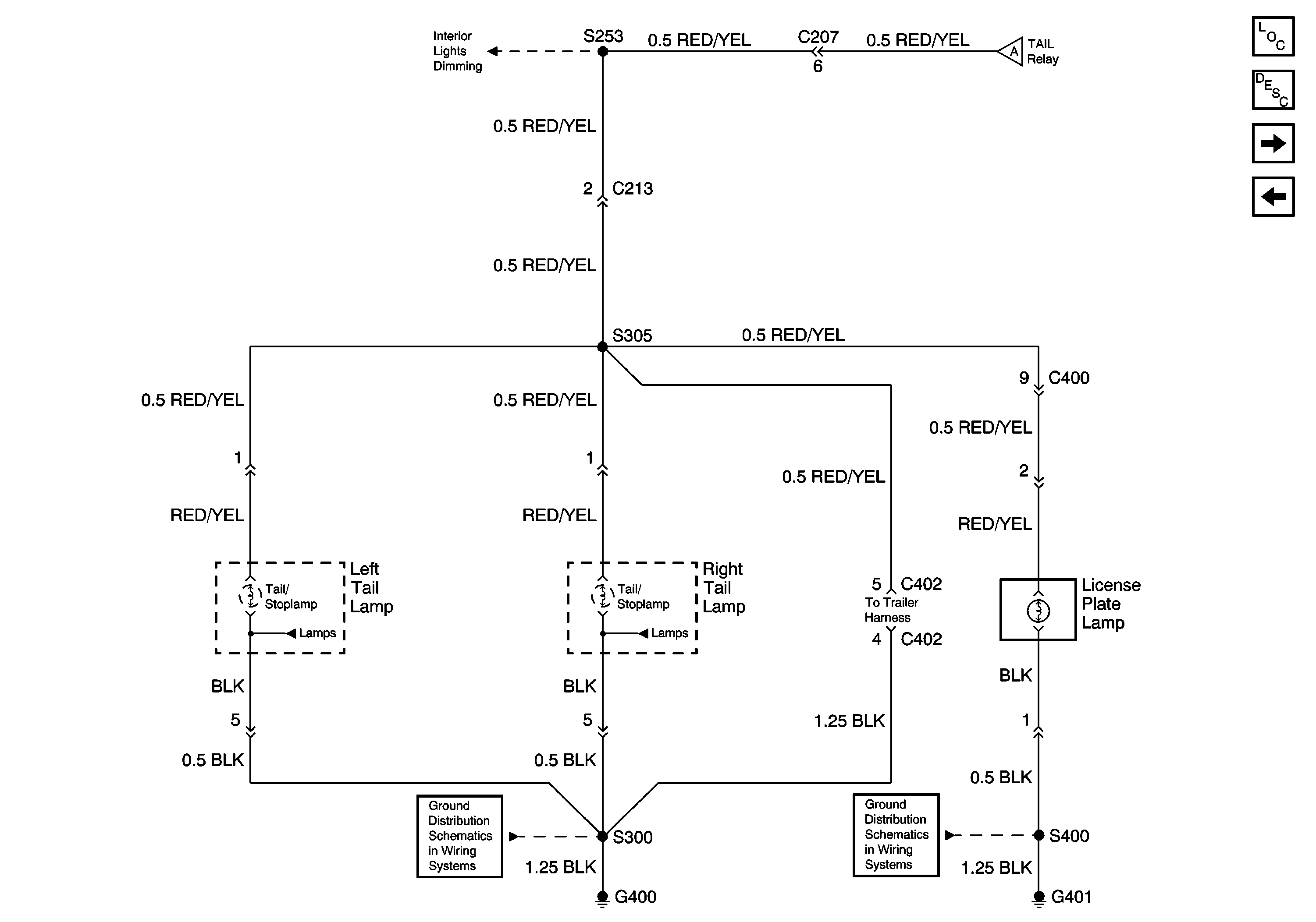
🢒 Tail Lamps
Tail Lamps
Tail Lamps
Master Electrical Component List
Exterior Lighting Systems Description and Operation
Hazard Switch, Turn/Hazard Flasher
Side Marker Lamps, Light Switch
Side Marker Lamps, Light Switch
G400 and G401
G400 and G401