GM Service Manual Online
For 1990-2009 cars only

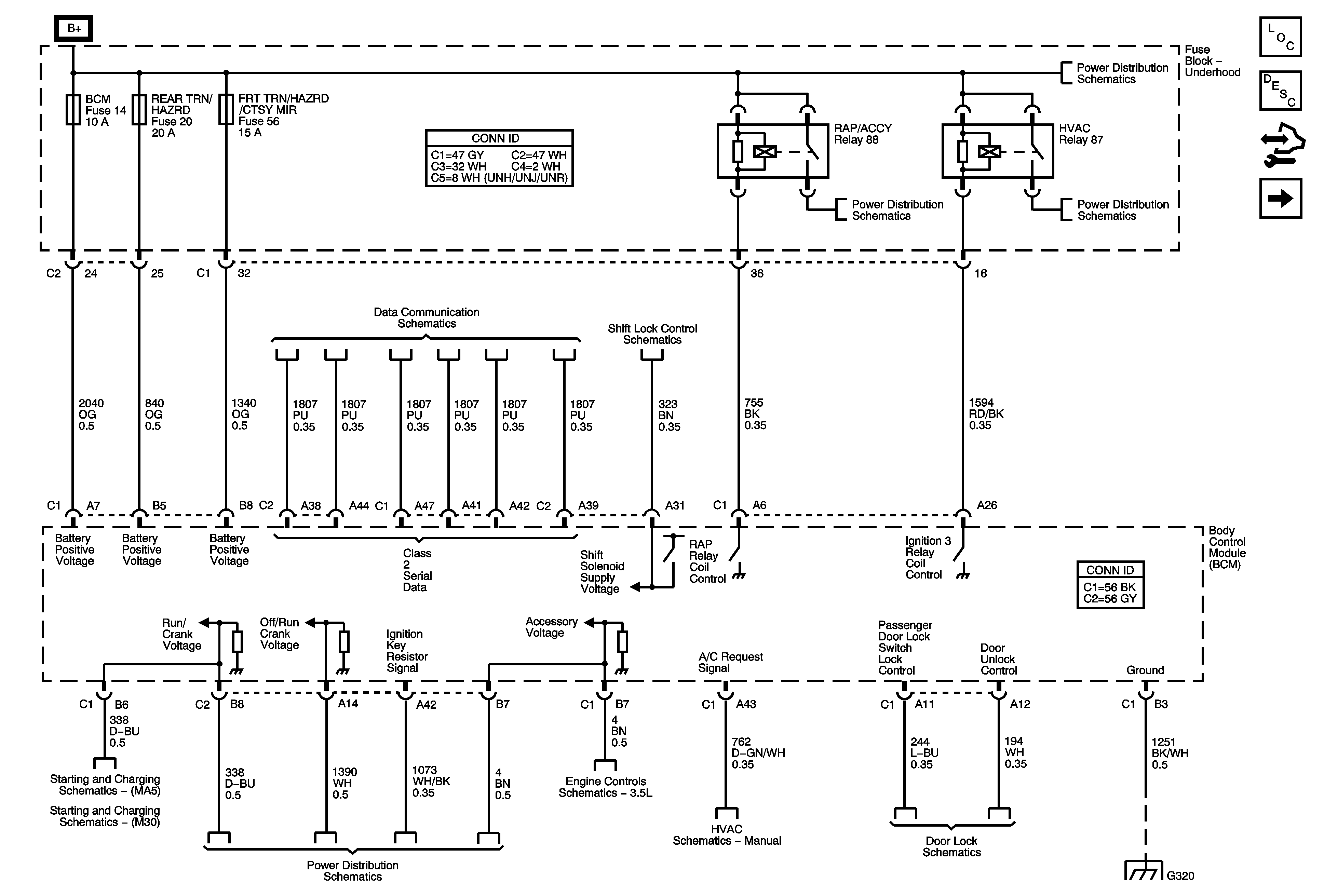
Power, Ground and Subsystem References to DLC, A/T Shift Lock Control, HVAC, Starting and Charging, Engine Controls, and Door Lock/Indicator Systems

Power, Ground, and Subsystem References to DLC, A/T Shift Lock Control, HVAC, Starting and Charging, Engine Controls, and Door Lock/Indicator Systems


Object Number: 1777870  Size: FS
Master Electrical Component List
Body Control System Description and Operation
Control Module References
Subsystem References to ABS, Horn, Theft, and Wiper/Washer Systems
B+ Bus - Underhood Fuse Block - 1 of 2
HVAC BLWR, HVAC CNTRL HD, PWR HTR SWTCH, TCCM SWTCH, and VSES/ABS Fuses
ETC, LT PWR WNDW, O2 SNSR, REAR/WPR MTR, REAR WPR SWTCH/PUMP, RT PWR WNDW, SPO, AND S/ROOF FRT/WPR Fuses
Data Link Connector (DLC) Schematics
Shift Lock Control Schematics
Starting System - MA5
Starting System - M30
Ignition Switch and BATT IGN SWTCH Fuse
Module Power, Ground, Serial Data, MIL, and DLC
Module Power, Ground, and Blower Motor
Power Door Locks
G300, G310, and G320