GM Service Manual Online
For 1990-2009 cars only
Makes
🢒
Isuzu
🢒
2003
🢒
Ascender - 4WD
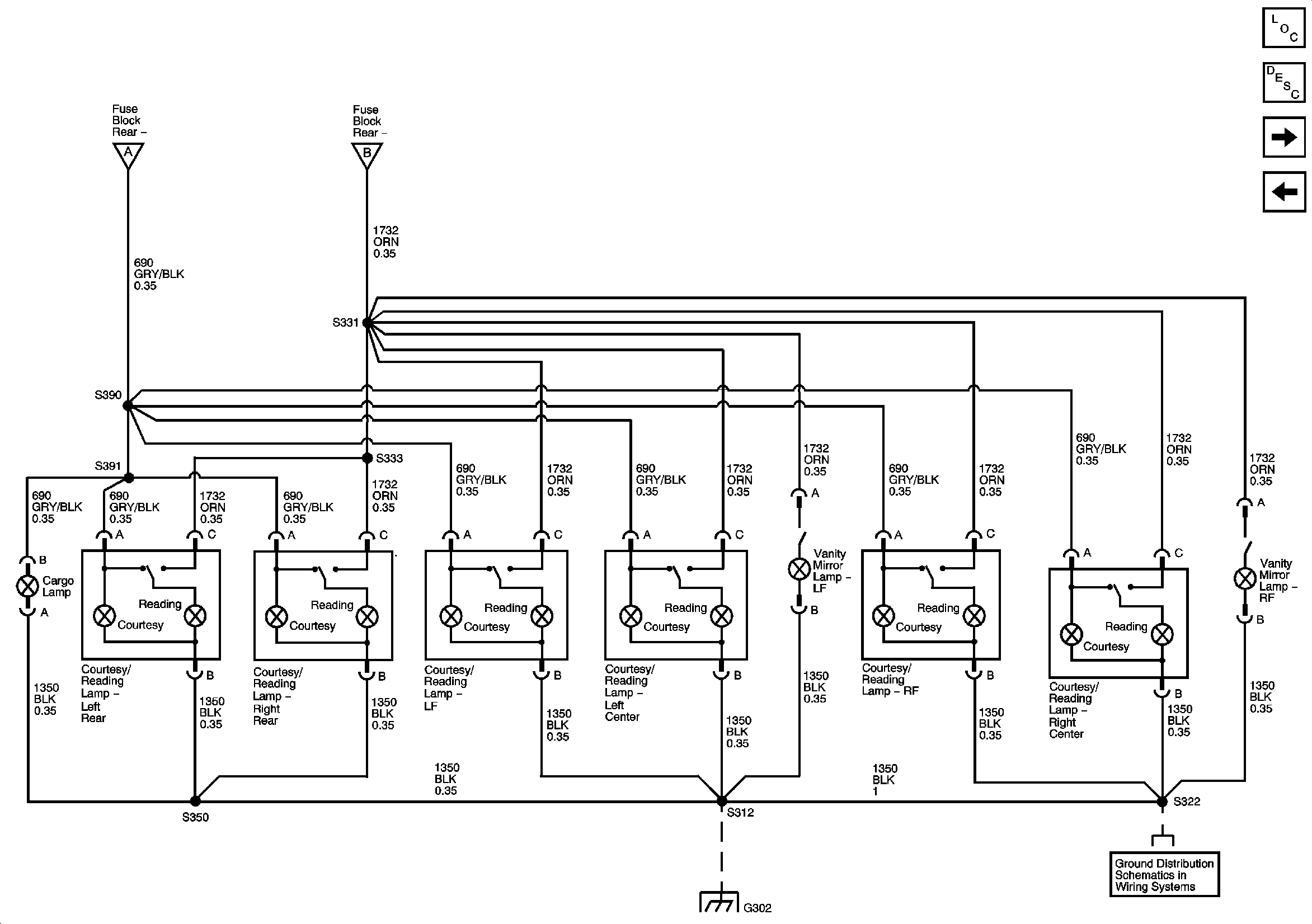
🢒 Cargo Lamp, Vanity Mirror Lamps, Courtesy/Reading Lamps
Cargo Lamp, Vanity Mirror Lamps, Courtesy/Reading Lamps
Cargo Lamp, Vanity Mirror Lamps, Courtesty/Reading Lamps
Master Electrical Component List
Interior Lighting Systems Description and Operation
Liftgate and Door Switches
Interior Lamps Controls
G302, 2 of 2
G302-1 of 2, G303, and G304
Interior Lamps Controls