GM Service Manual Online
For 1990-2009 cars only
Makes
🢒
Pontiac
🢒
2005
🢒
Aztek - AWD
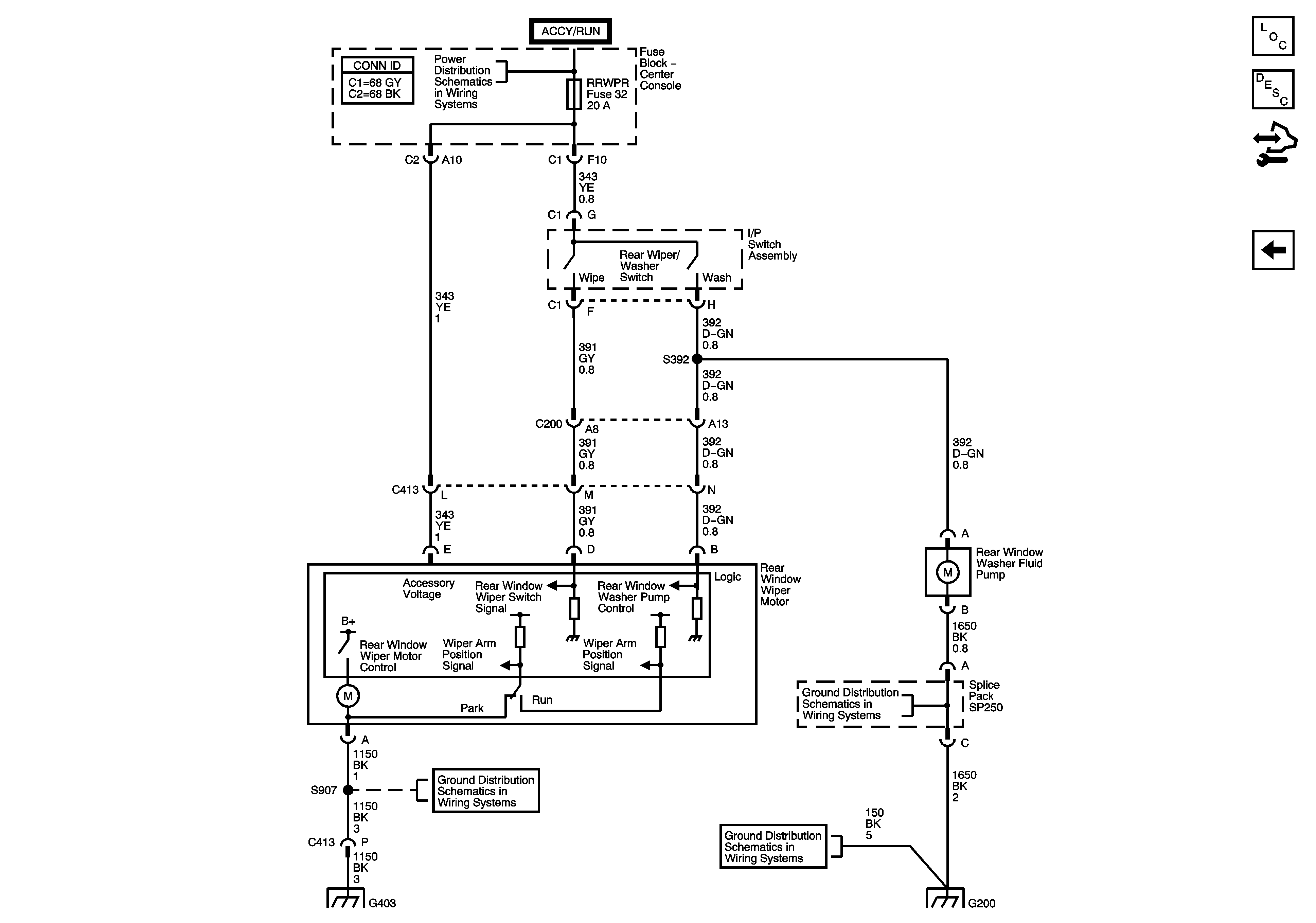
🢒 Rear Wiper/Washer
Rear Wiper/Washer
Rear Wiper/Washer
Master Electrical Component List
Rear Wiper/Washer System Description and Operation
Control Module References
Windshield Wiper/Washer
ACCPWR, ELC ACCY, IGN 1, RR WPR, SUN RF, WIPER Fuses, and PWR WDWS Circuit Breaker
G402 and G403
G402 and G403
G200
G200
G200