GM Service Manual Online
For 1990-2009 cars only
Makes
🢒
Pontiac
🢒
2000
🢒
Firebird
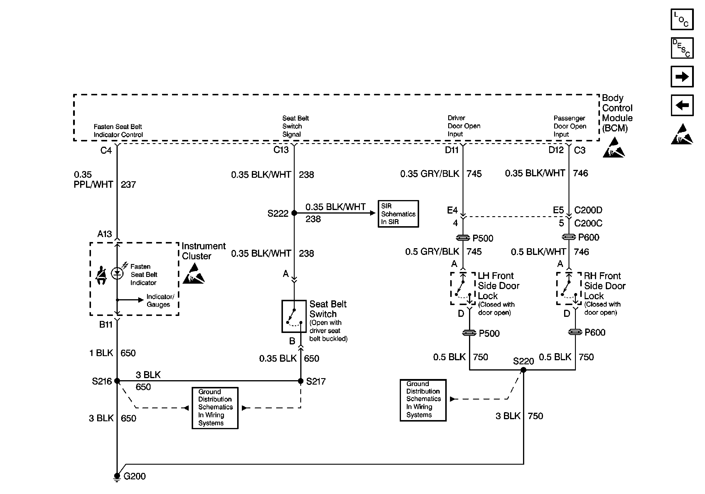
🢒 Body Control Module and Switch Inputs
Body Control Module and Switch Inputs
Body Control Module and Switch Inputs
Body Control Module Components
Body Control System Circuit Description
Body Control Module and Courtesy Lamps
Body Control Module and RAP Components
Handling ESD Sensitive Parts Notice
Instrument Cluster Illumination and Indicators
G200 Splice S216
G200 Splice S220