GM Service Manual Online
For 1990-2009 cars only
Makes
🢒
Pontiac
🢒
2007
🢒
Solstice
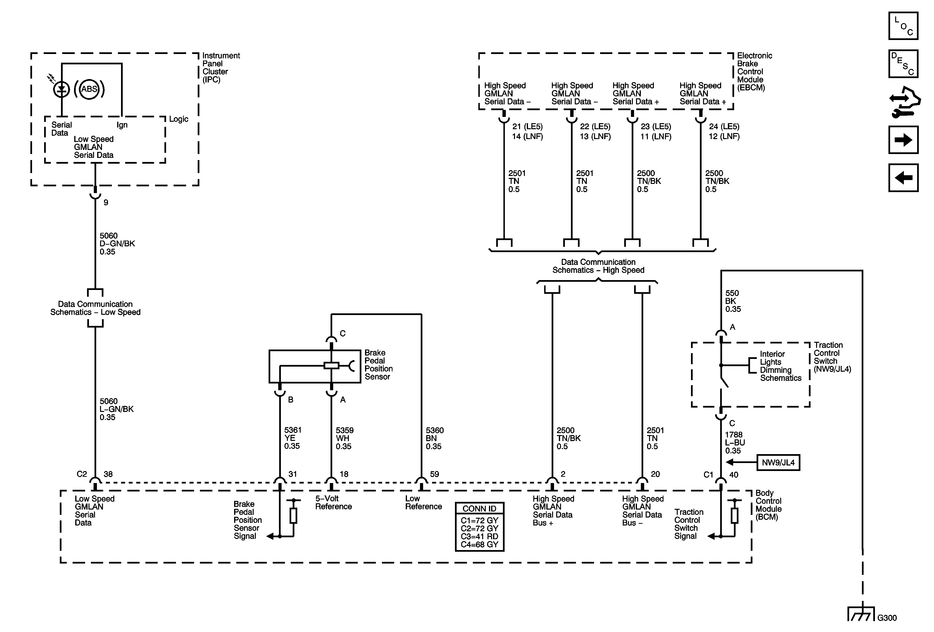
🢒 Brake Pedal Sensor, Indicator, and Traction Control Switch
Brake Pedal Sensor, Indicator, and Traction Control Switch
Brake Pedal Sensor, Indicator, and Traction Control Switch
Master Electrical Component List
ABS Description and Operation
Control Module References
Stability Control Sensors (JL4)
Power, Ground, and Wheel Speed Sensors
Low Speed LAN
High Speed LAN
Lights
G300 - 2 of 2