GM Service Manual Online
For 1990-2009 cars only
Makes
🢒
Pontiac
🢒
2007
🢒
Solstice
🢒 Instrument Cluster
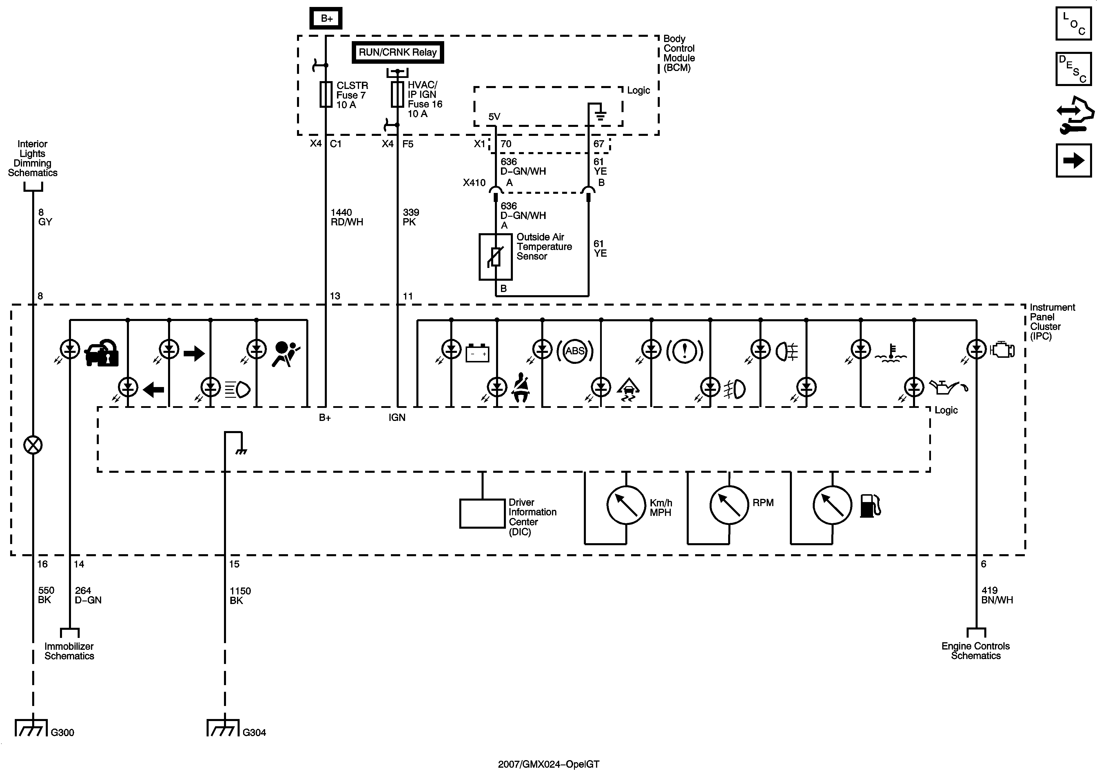
Instrument Cluster
Instrument Cluster
Master Electrical Component List
Instrument Cluster Description and Operation
Control Module References
Sensors and Switches
TANK VENT, OUTLET, IP IGN, BACKUP, ABS, and ECM TRANS Fuses
HVAC/PK3, AUDIO AMPLIFIER, WIPERS, HVAC/IP IGN, RESRAINTS, and EPS/SWC Fuses
TANK VENT, OUTLET, IP IGN, BACKUP, ABS, and ECM TRANS Fuses
Lights
Wiper/Washer Schematics
Data Link, Ground, MIL, and Power
G300 - 2 of 2
G103, G304, G105, G104, and G106