GM Service Manual Online
For 1990-2009 cars only
Makes
🢒
Pontiac
🢒
2003
🢒
Vibe - FWD
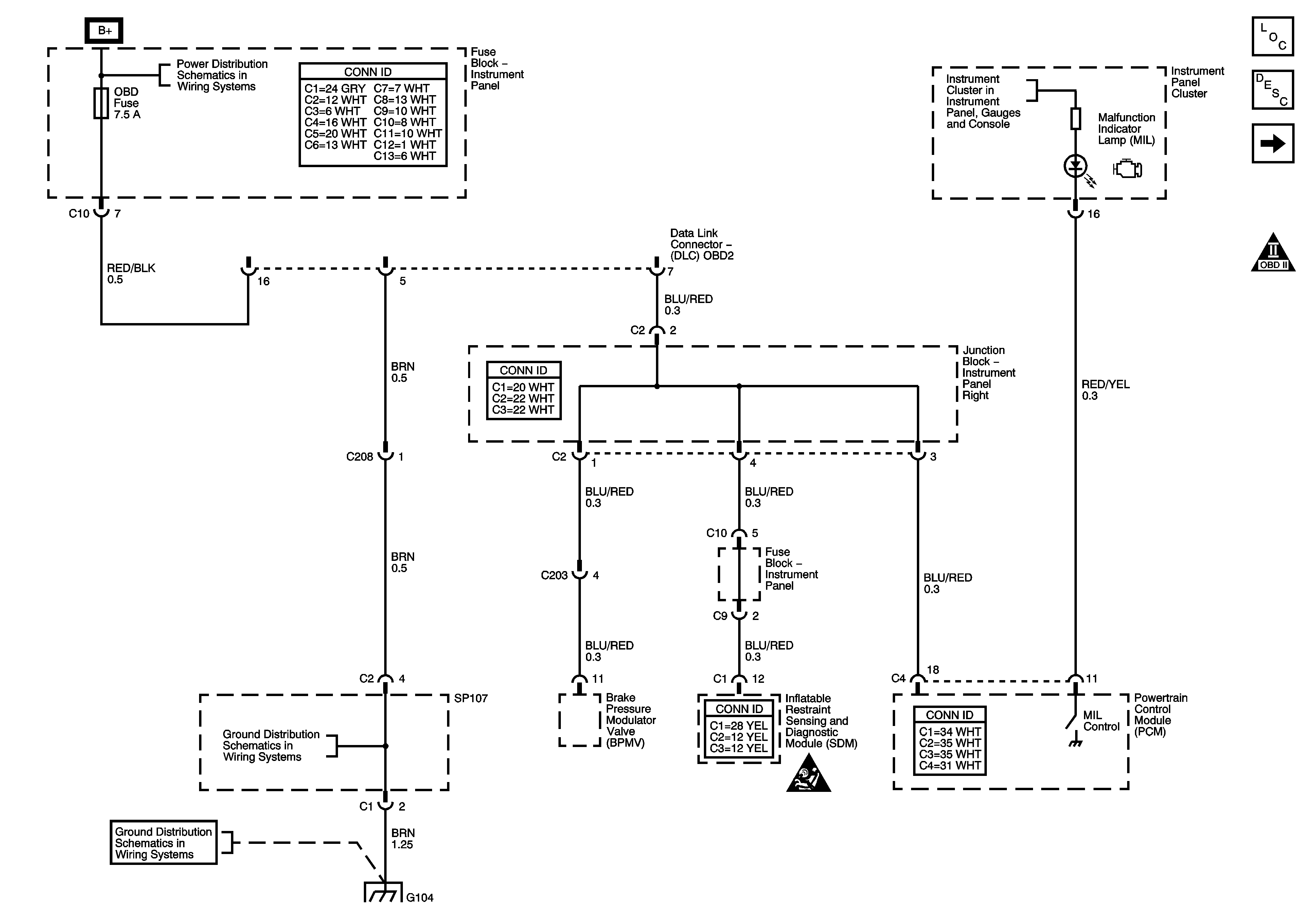
🢒 Data Link Communications Schematics (1 of 2)
Data Link Communications Schematics (1 of 2)
Data Link Connector (DLC (1 of 2))
Master Electrical Component List
Data Link Communications Description and Operation
SIR Handling Caution
Data Link Communications Schematics (2 of 2)
POWER, AM-1, DOOR, TAIL, P/POINT, ECU-B, STOP, OBD and INV Fuses
SP107, SP108 and G104
SP107, SP108 and G104
Charge, Air Bag, Malfunction, O/D Off, Cruise Indicators