GM Service Manual Online
For 1990-2009 cars only
Makes
🢒
Pontiac
🢒
2003
🢒
Vibe - FWD
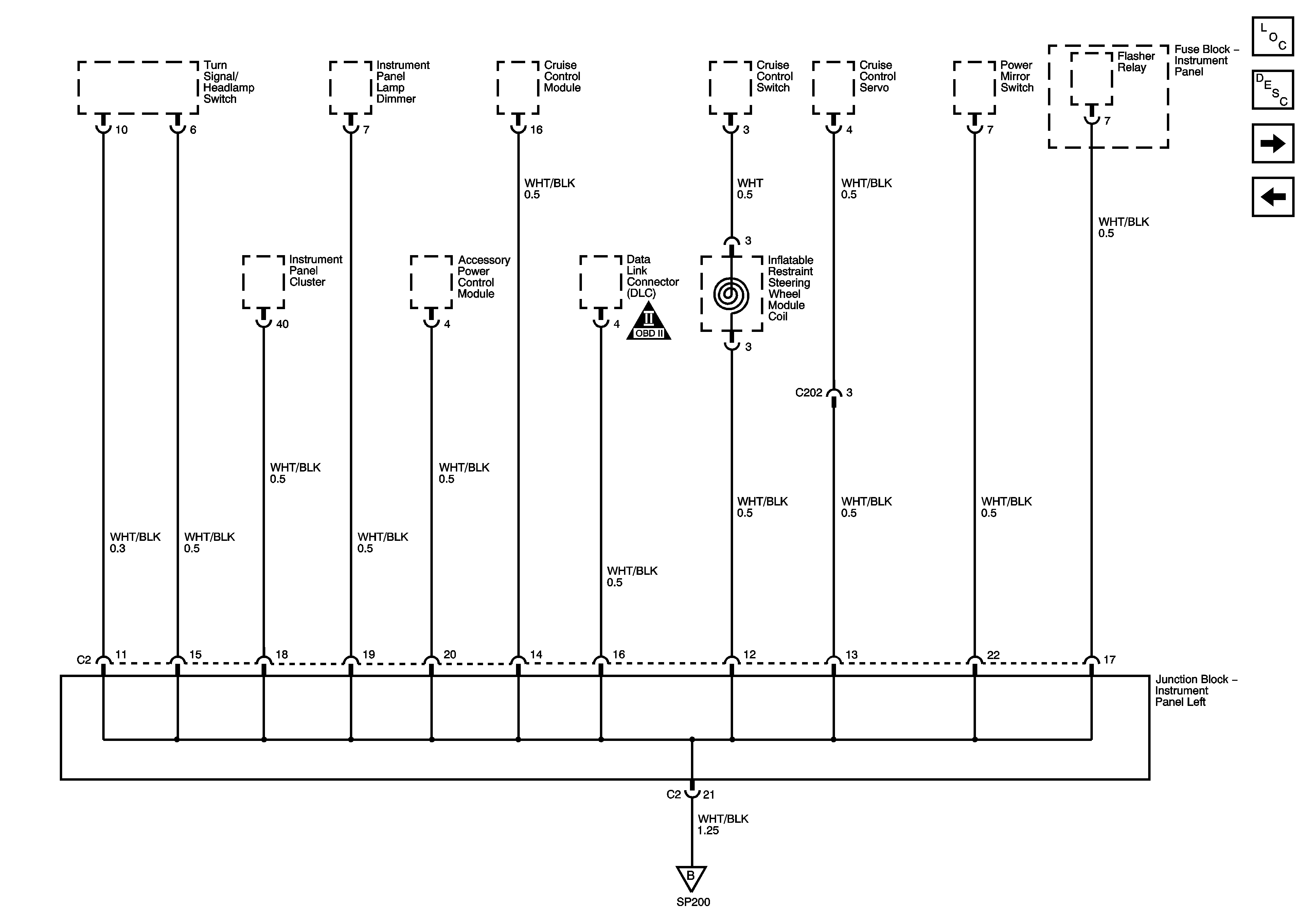
🢒 Left Instrument Panel Junction Block
Left Instrument Panel Junction Block
Left Instrument Panel Junction Block
Master Electrical Component List
S221
SP200 and G200