GM Service Manual Online
For 1990-2009 cars only
Makes
🢒
Pontiac
🢒
2007
🢒
Wave
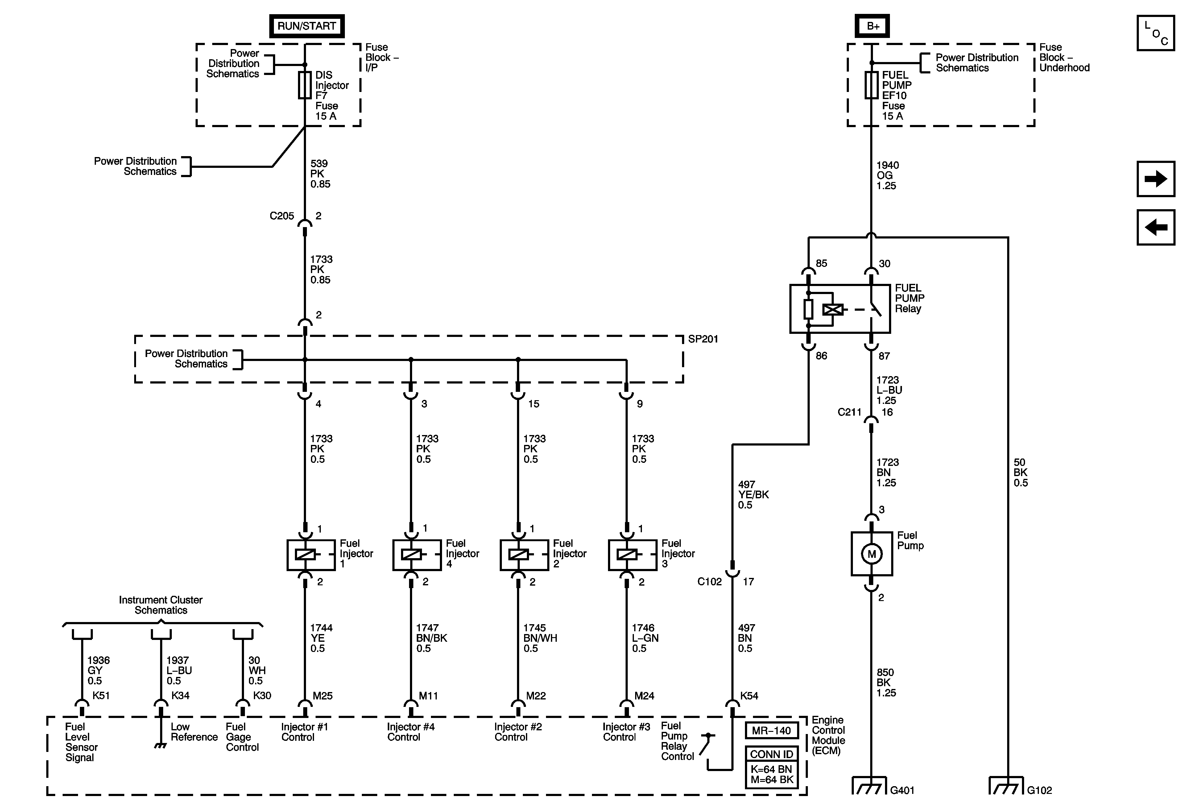
🢒 Fuel System 1.4L DOHC
Fuel System 1.4L DOHC
Fuel System
Master Electrical Component List (Hatchback)
EVAP and A/C Pressure Sensor 1.4L DOHC
Ignition Sensors 1.4L DOHC
Battery Feed
Battery Feed
Battery Feed
Battery Feed
Instrument Cluster Gages 1.2L
Ground Distribution G401
Ground Distribution G101, G102 - 1 of 2 and G105