GM Service Manual Online
For 1990-2009 cars only
Makes
🢒
Saab
🢒
2005
🢒
9-7x
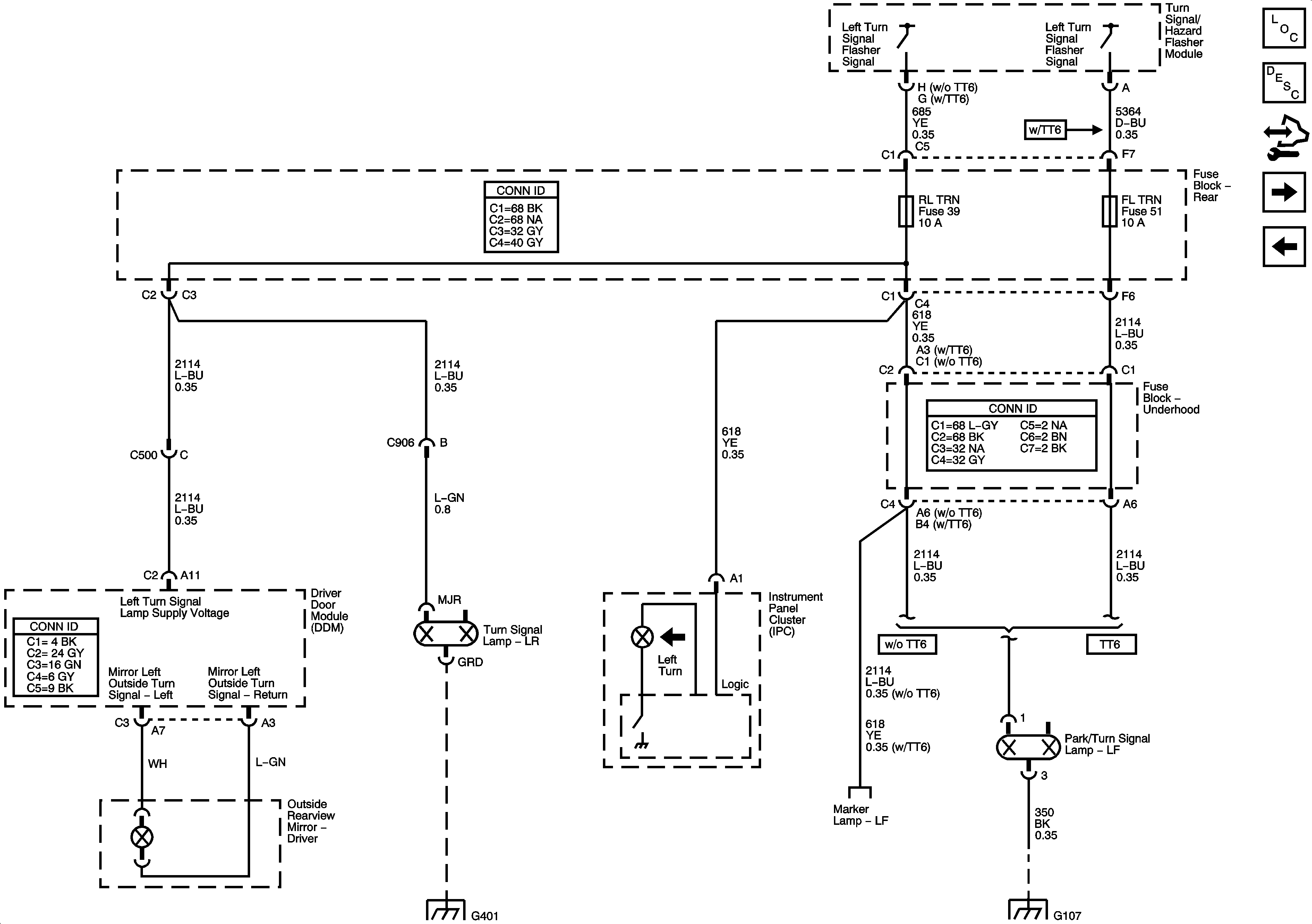
🢒 Left Turn Signal
Left Turn Signal
Left Turn Signals
Master Electrical Component List
Exterior Lighting Systems Description and Operation
Control Module References
Right Turn Signal
Right Turn Signal
G401, G402, and G403
Marker and Front Park Lamps
G104, G105 and G107