GM Service Manual Online
For 1990-2009 cars only
Makes
🢒
Saturn
🢒
2007
🢒
OUTLOOK - FWD
🢒
Diagnostic Navigation
🢒
Vehicle Diagnostic Information
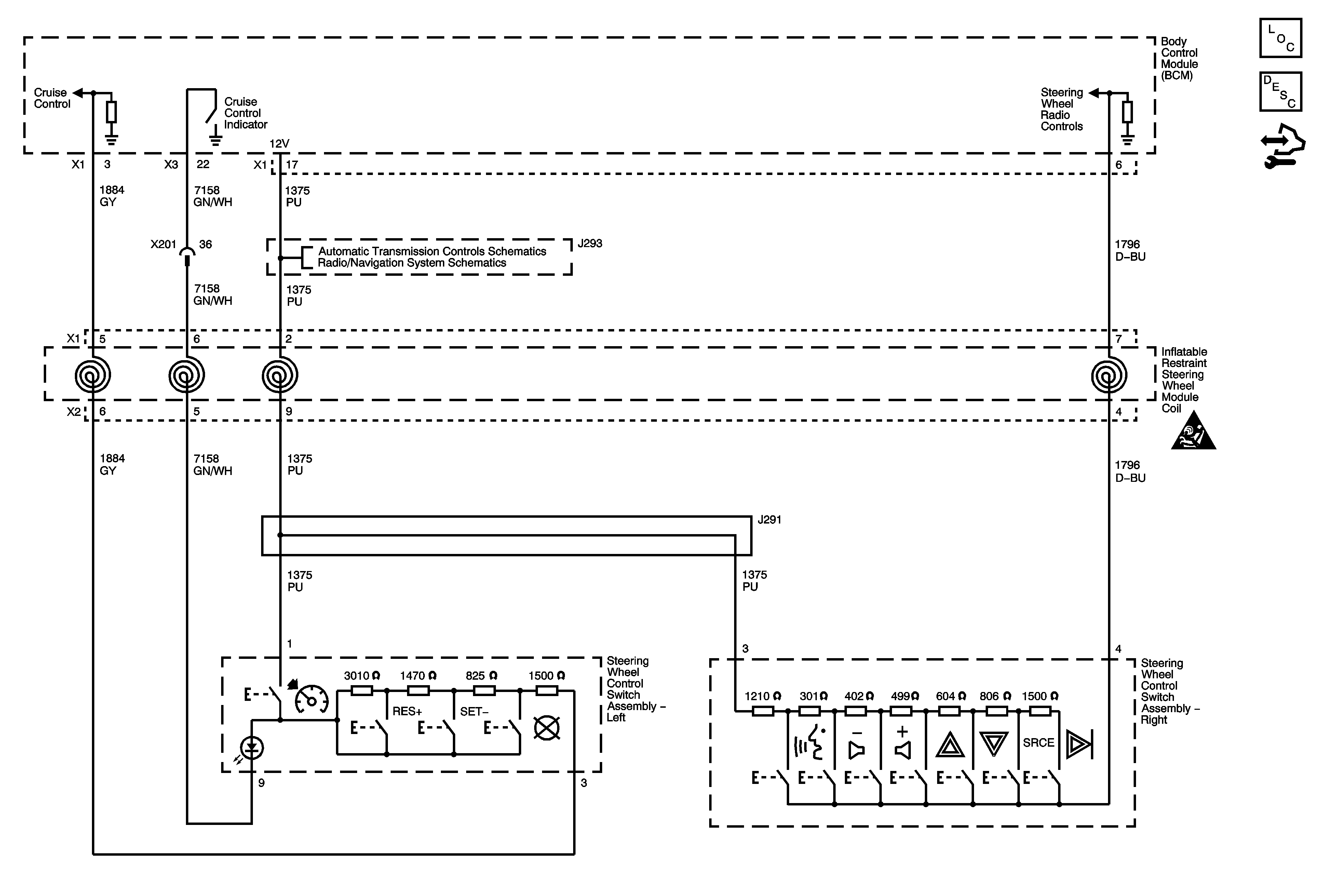
🢒 Steering Wheel Secondary/Configurable Control Schematics
UK3
Master Electrical Component List
Steering Wheel Controls Description and Operation
Control Module References
IMS and Tap Up/Tap Down
Secondary Controls
Secondary/Configurable Control Schematic Icons