GM Service Manual Online
For 1990-2009 cars only

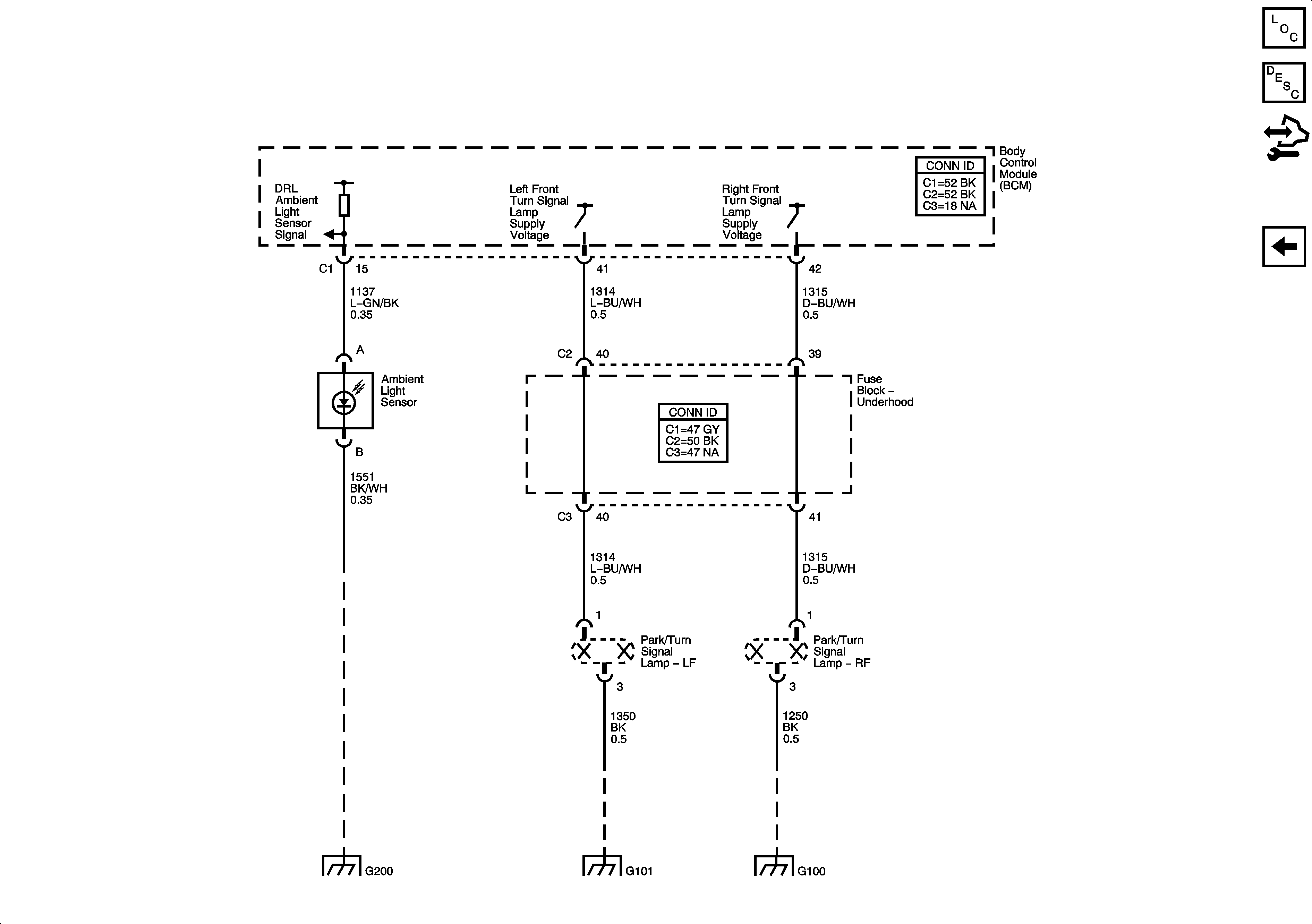
Daytime Running Lights

Daytime Running Lights


Object Number: 1636933  Size: FS
Master Electrical Component List
Exterior Lighting Systems Description and Operation
Control Module References
Headlights
G200 - 2 of 2
G100 and G101
G100 and G101