GM Service Manual Online
For 1990-2009 cars only
Makes
🢒
Cadillac
🢒
2005
🢒
SRX
🢒 Backup Lamps
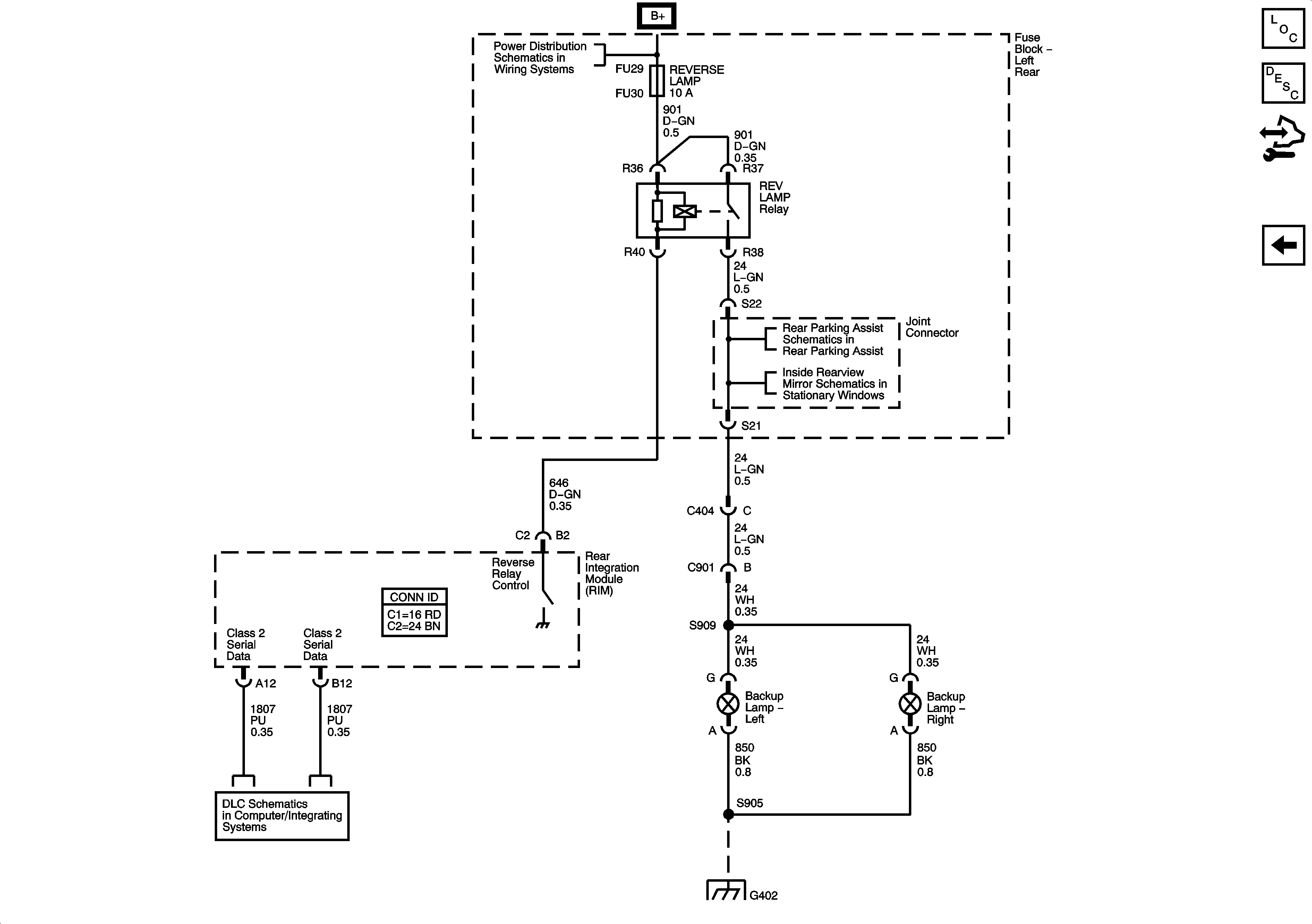
Backup Lamps
Backup Lamps
Master Electrical Component List
Exterior Lighting Systems Description and Operation
Control Module References
Tail Lamps and Stop Lamps - Export
FFS Sw, FFSM, Bass Fuses, and BASS Relay Schematic
Class 2 Serial Data - 2 of 2
Fuse Block - Left Rear B+ Bus
Inside Rearview Mirror Schematic
Rear Parking Assist Schematic
G402 - 2 of 2