GM Service Manual Online
For 1990-2009 cars only
Makes
🢒
Chevrolet
🢒
2000
🢒
Astro - 2WD
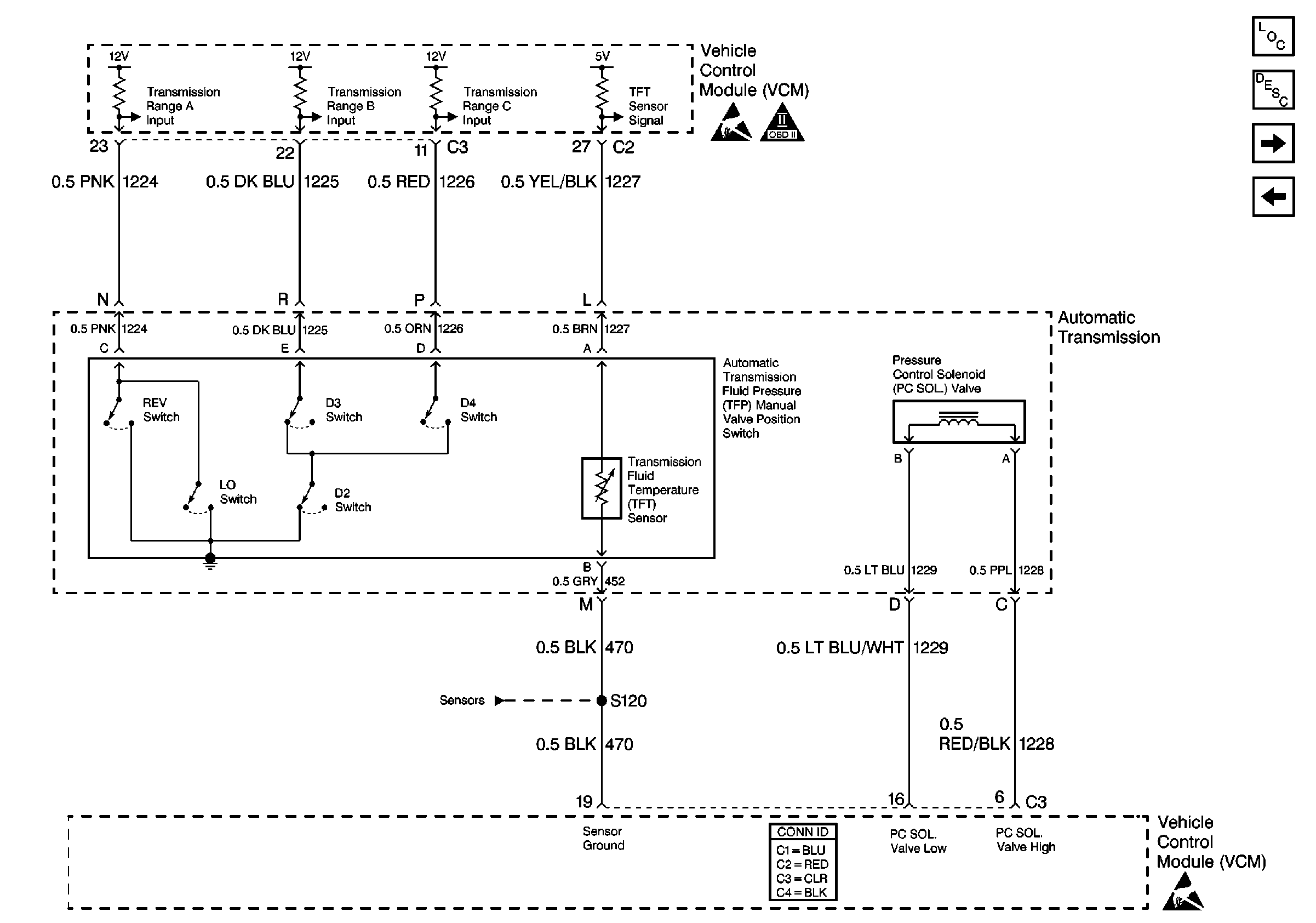
🢒 Transmission Switch Input Controls
Transmission Switch Input Controls
Transmission Switch Input Controls
Engine Controls Components
Transmission Component and System Description
Transmission Range, Tow/Haul Switch Input Controls
Transmission Shift Controls
Handling ESD Sensitive Parts Notice
OBD II Symbol Description Notice
Handling ESD Sensitive Parts Notice
Fuel Mixture Input Controls