GM Service Manual Online
For 1990-2009 cars only
Makes
🢒
Chevrolet
🢒
2001
🢒
Astro - 2WD
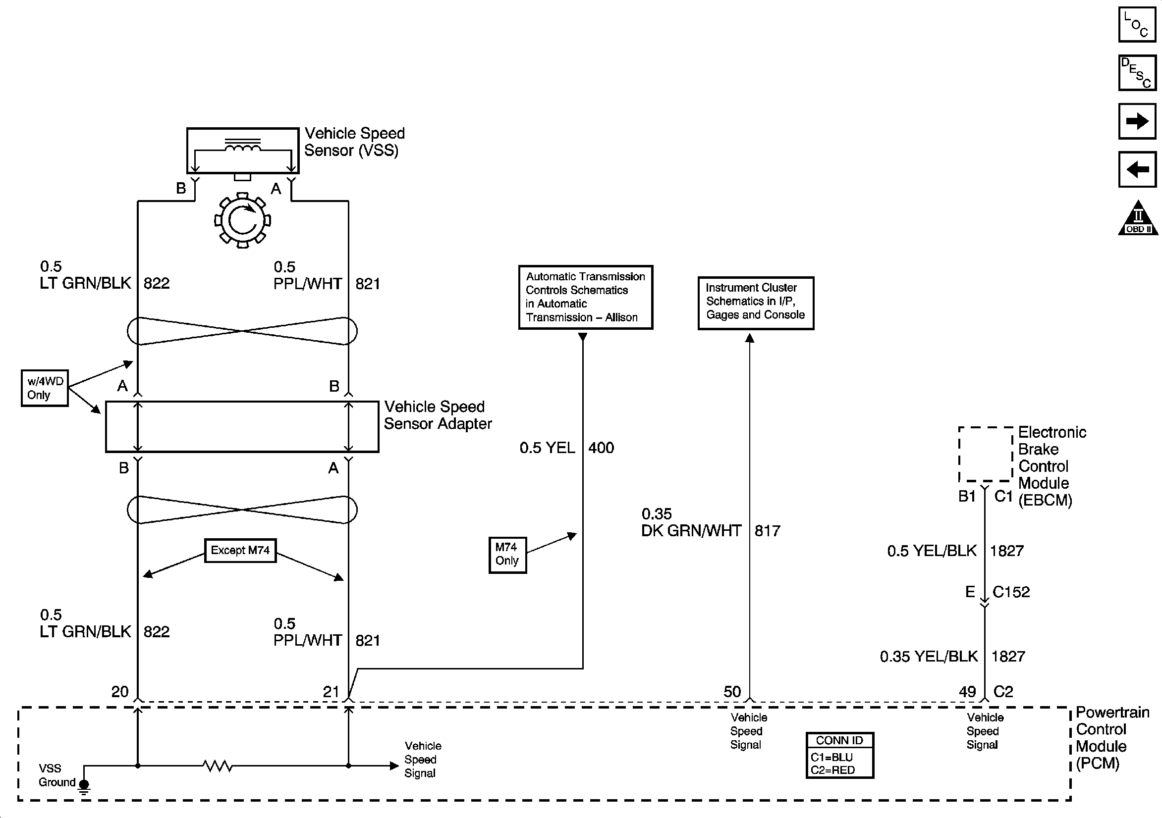
🢒 Engine Data Sensors - VSS
Engine Data Sensors - VSS
Engine Data Sensors - VSS
Master Electrical Component List
Powertrain Control Module Description
Data Link Communications
PCM, ENG 1 Fuse, Engine Coolant Temperature (ECT) Sensor, and MAP Sensor
OBD II Symbol Description Notice
Power, Ground, and Stop Lamp Switch TCC Signal Circuit
Gauges, VSS, and Engine Oil Signals