GM Service Manual Online
For 1990-2009 cars only

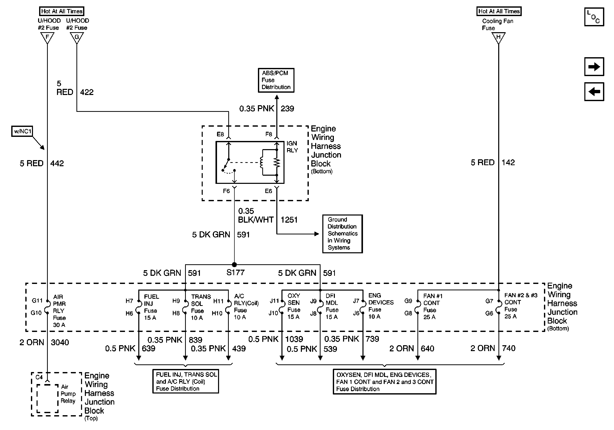
AIR PMP RLY, FUEL INJ, TRANS SOL, A/C RLY (Coil), OXY SEN, DFI MDL, ENG DEVICES, FAN CONT #1, FAN CONT #2 & #3 Fuses, and IGN and Air Pump Relays

AIR PMP RLY, FUEL INJ, TRANS SOL, A/C RLY (Coil), OXY SEN, DFI MDL, ENG DEVICES, FAN CONT #1, FAN CONT #2 & #3 Fuses, and IGN and Air Pump Relays


Object Number: 308443  Size: FS
Battery, EBCM, Engine Wiring Harness Junction Blocks (Bottom and Top),Fusible Links, Generator, Remote Battery Stud and Starter
Battery, EBCM, Engine Wiring Harness Junction Blocks (Bottom and Top),Fusible Links, Generator, Remote Battery Stud and Starter
ABS/PCM, STOP, TURN SIGNAL and SRS Fuses
G203 (3 of 3)
FUEL INJ, TRANS SOL and A/C RLY (COIL) Fuses
FAN CONT #2 & #3, FAN CONT #1, OXY SEN, DFI MDL and ENG DEVICES Fuses
Power and Grounding Components
RADIO and HTD MIR Fuses, REAR DEFOG Circuit Breaker and REAR DEFOG Relay
Ignition and Start Switch and A/C CRUISE, A/C FAN, CRUISE, PCM (Crank)and PCM/BCM/CLSTR Fuses