GM Service Manual Online
For 1990-2009 cars only
Makes
🢒
Chevrolet
🢒
2000
🢒
S10 Pickup - 2WD
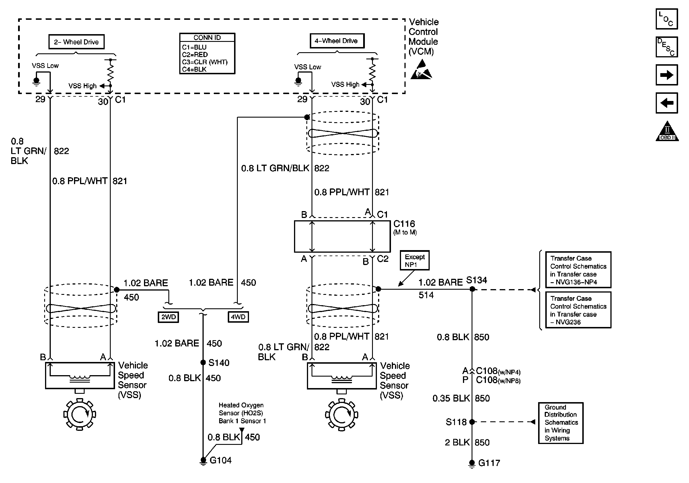
🢒 Vehicle Speed Sensor (VSS)
Vehicle Speed Sensor (VSS)
Vehicle Speed Sensor (VSS)
Engine Controls Components
Information Sensors/Switches Description
Ignition Controls
MAF Sensor and IAC Valve
OBD II Symbol Description Notice
VCM Connector End Views
Handling ESD Sensitive Parts Notice
Heated Oxygen Sensors
Speed Sensors
Speed Sensors
G104 and G117