GM Service Manual Online
For 1990-2009 cars only
Makes
🢒
Chevrolet
🢒
2005
🢒
SSR
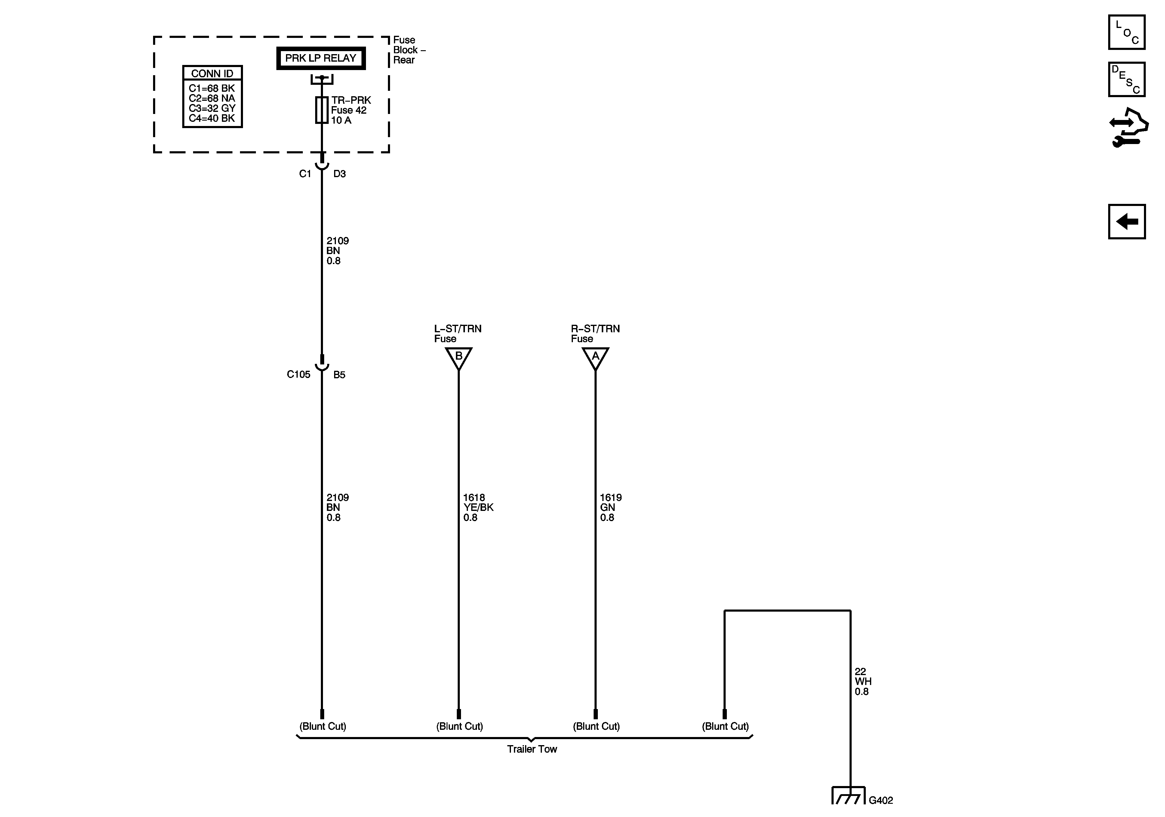
🢒 Trailer Tow
Trailer Tow
Trailer Tow
Master Electrical Component List
Exterior Lighting Systems Description and Operation
Control Module References
Backup Lamps
Park Lamp Control, Turn Signal Inputs and Hazard Switch
Turn Signal Lamps
Turn Signal Lamps
G400, G401, G402, G404, G405