GM Service Manual Online
For 1990-2009 cars only
Makes
🢒
Generic
🢒
2003
🢒
Unit Repair
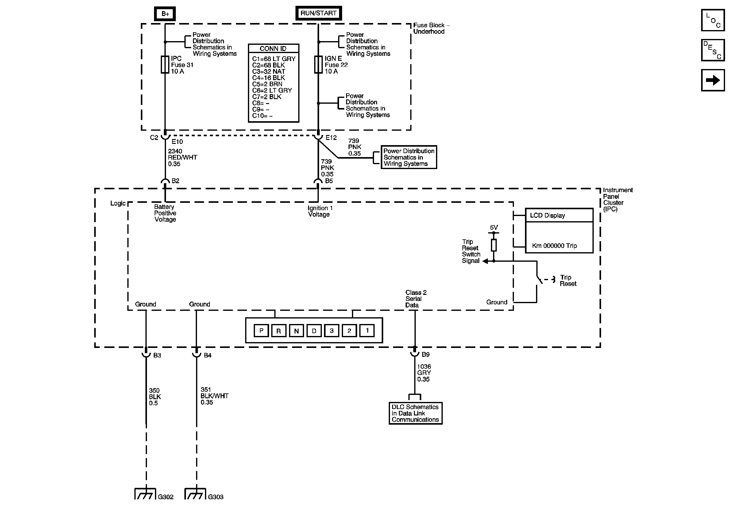
🢒 Power, Ground, and Serial Data
Power, Ground, and Serial Data
Power, Ground, and Serial Data
Master Electrical Component List
Instrument Cluster Description and Operation
Gages
B+ Bus - Underhood Fuse Block
IGN B Fuse
SPARE, IGN E, SIR, TBC IGN 1, and ISRV Fuses
SPARE, IGN E, SIR, TBC IGN 1, and ISRV Fuses
G302
G303, and G304
Data Link Schematics