GM Service Manual Online
For 1990-2009 cars only
Makes
🢒
Isuzu
🢒
2003
🢒
Ascender - 4WD
🢒 HVAC I, BRAKE, TBC RUN Fuses
HVAC I, BRAKE, TBC RUN Fuses
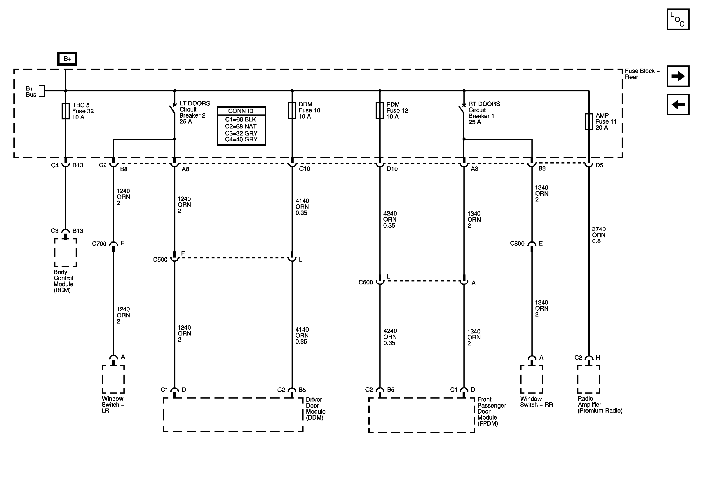
TBC 5, DDM, PDM, AMP Fuses, LT DOORS and RT DOORS Circuit Breakers
Master Electrical Component List
LGM/DSM, OH BATT/ONSTAR/PHONE, RADIO, HVAC B Fuses
IGN 0, TBC IG, TBC ACC, FRT WIPER ,RAIN SEN, HVAC, 4WD Fuses
I/P BATT, TRAILER ABS, HORN IGN A, IGN B, ATC Fuses