GM Service Manual Online
For 1990-2009 cars only
Makes
🢒
Oldsmobile
🢒
2001
🢒
Intrigue
🢒
Body and Accessories
🢒
Doors
🢒 Power Window Schematics
Figure
1:
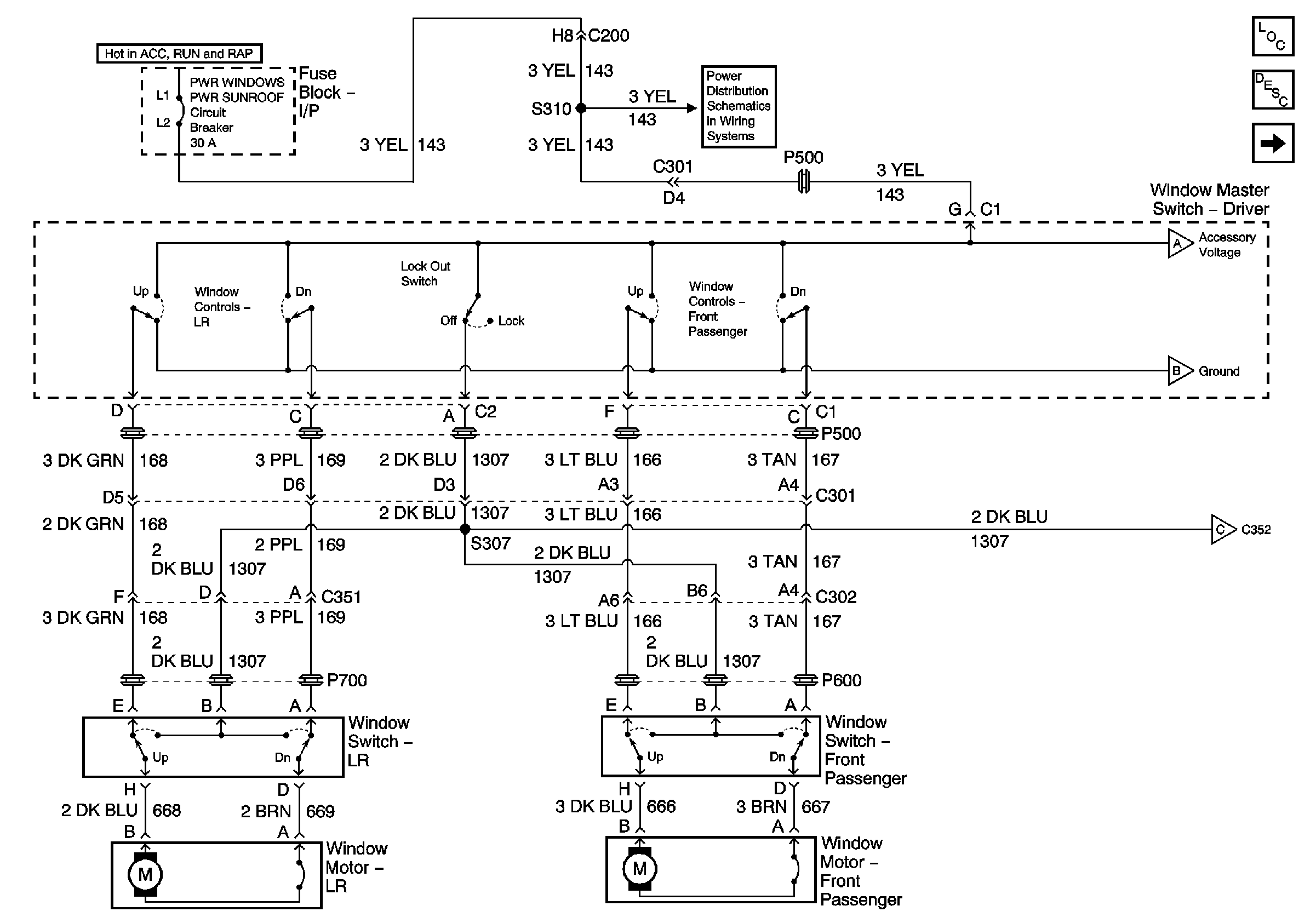
LR and RF Power
Master Electrical Component List original
Power Windows Description and Operation
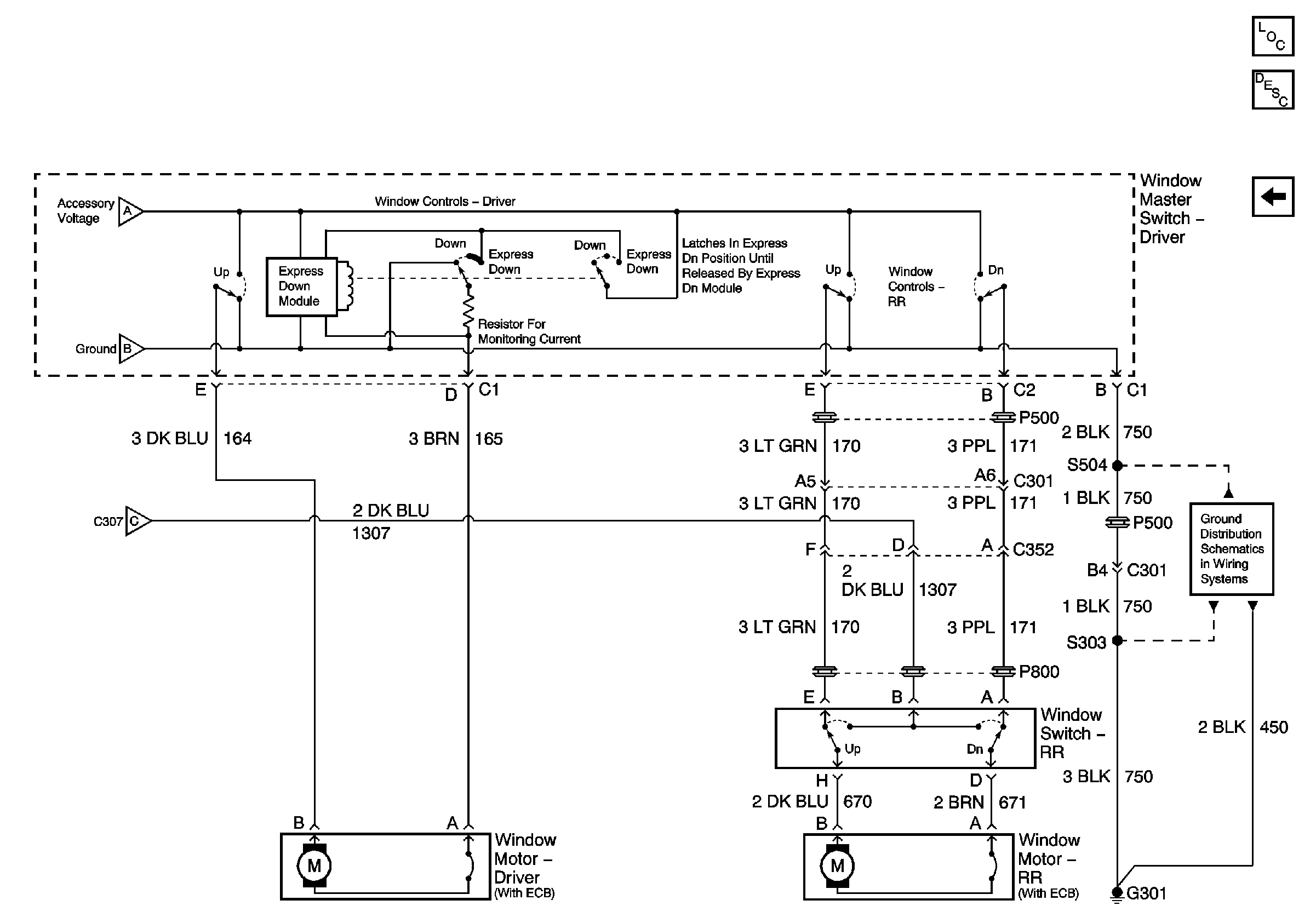
LF and RR Power, Grounds
01 W-Car Olds: Power Sunroof Schematics: (Power, Ground and Switch)
Figure
2:
LF and RR Power, Grounds
Master Electrical Component List original
LR and RF Power
LR and RF Power
Steering Wheel Controls, Window and Door Lock Switches
Ground G301 (1 of 3)