GM Service Manual Online
For 1990-2009 cars only
Makes
🢒
Saturn
🢒
2007
🢒
VUE - FWD
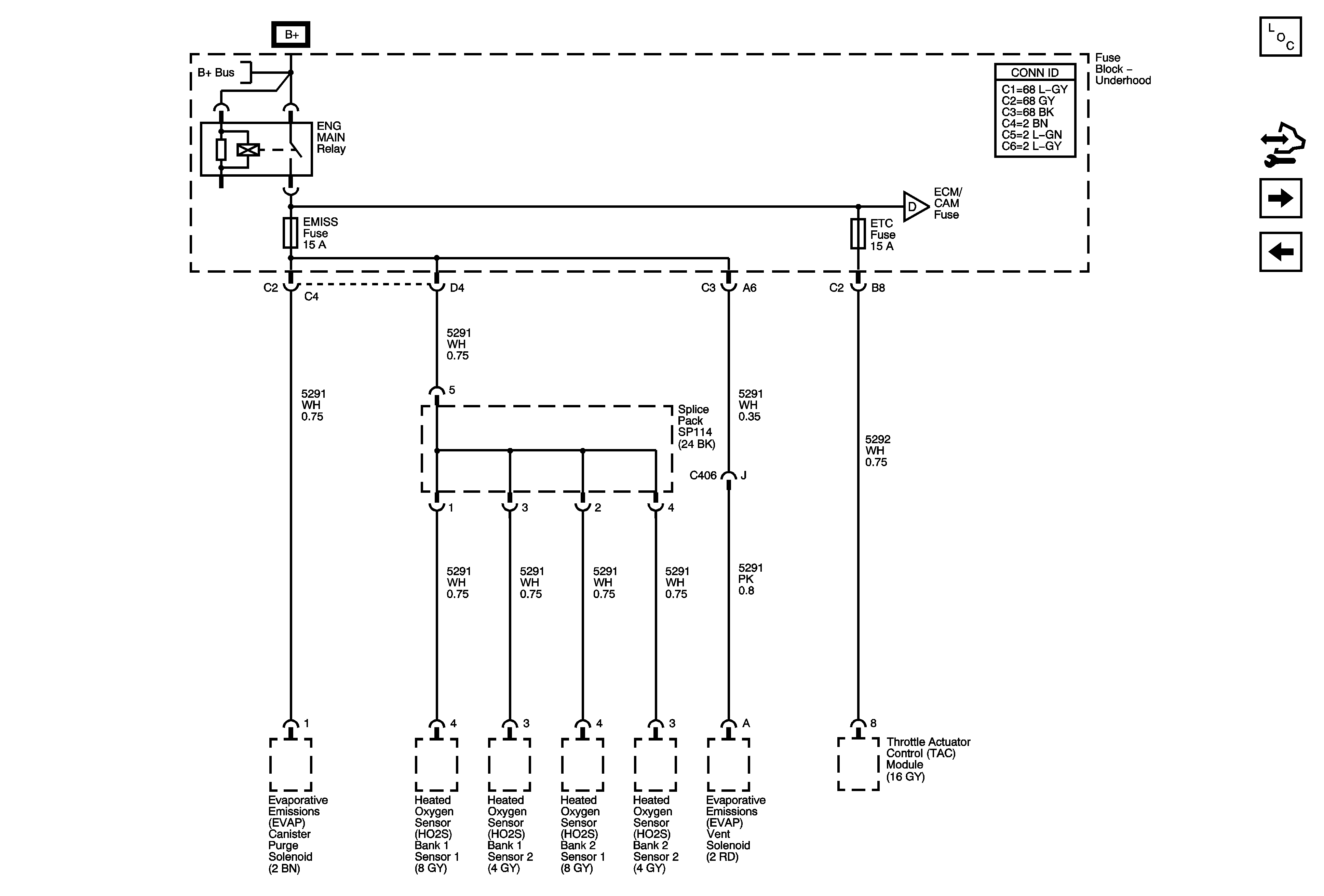
🢒 EMISS and ETC Fuses L66
EMISS and ETC Fuses L66
EMISS and ETC Fuses L66
Master Electrical Component List
Control Module References
ECM/CAM Fuse L66
EMISS, IGN/INJ, and ETC Fuses (HP7)
B+ Bus and EPS Fuse
ECM/CAM Fuse L66