GM Service Manual Online
For 1990-2009 cars only
Makes
🢒
Cadillac
🢒
2000
🢒
Seville
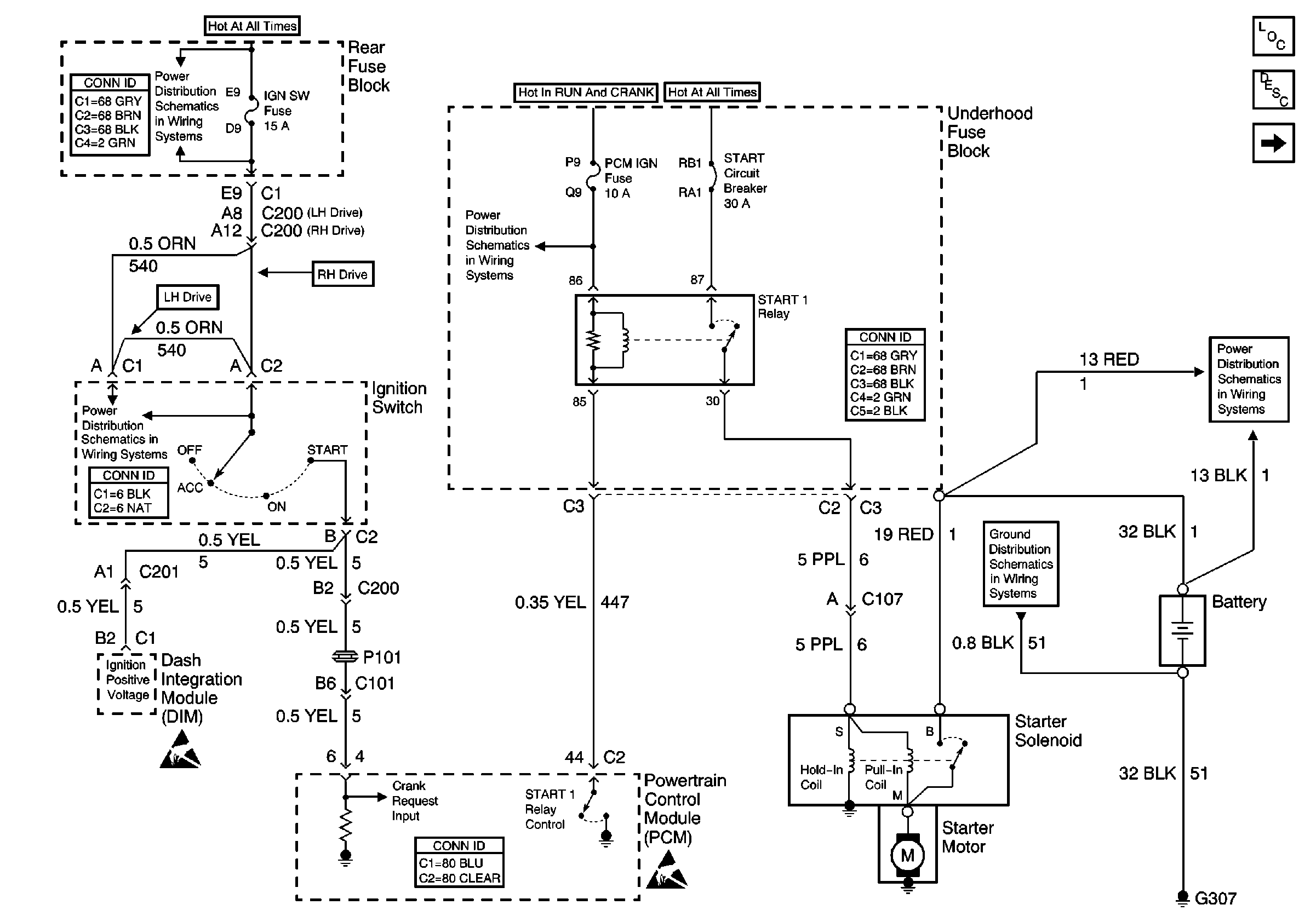
🢒 Starter Solenoid Control
Starter Solenoid Control
Starter Solenoid Control
Engine Electrical Components
Charging System Description
Generator Controls and Battery
Ignition Switch
Ignition Switch
Power to Underhood Fuse Block
Start Circuit Breaker and ACC, WSW Fuses
G307
Handling ESD Sensitive Parts Notice
Handling ESD Sensitive Parts Notice