GM Service Manual Online
For 1990-2009 cars only
Makes
🢒
Chevrolet
🢒
2000
🢒
S10 Pickup - 2WD
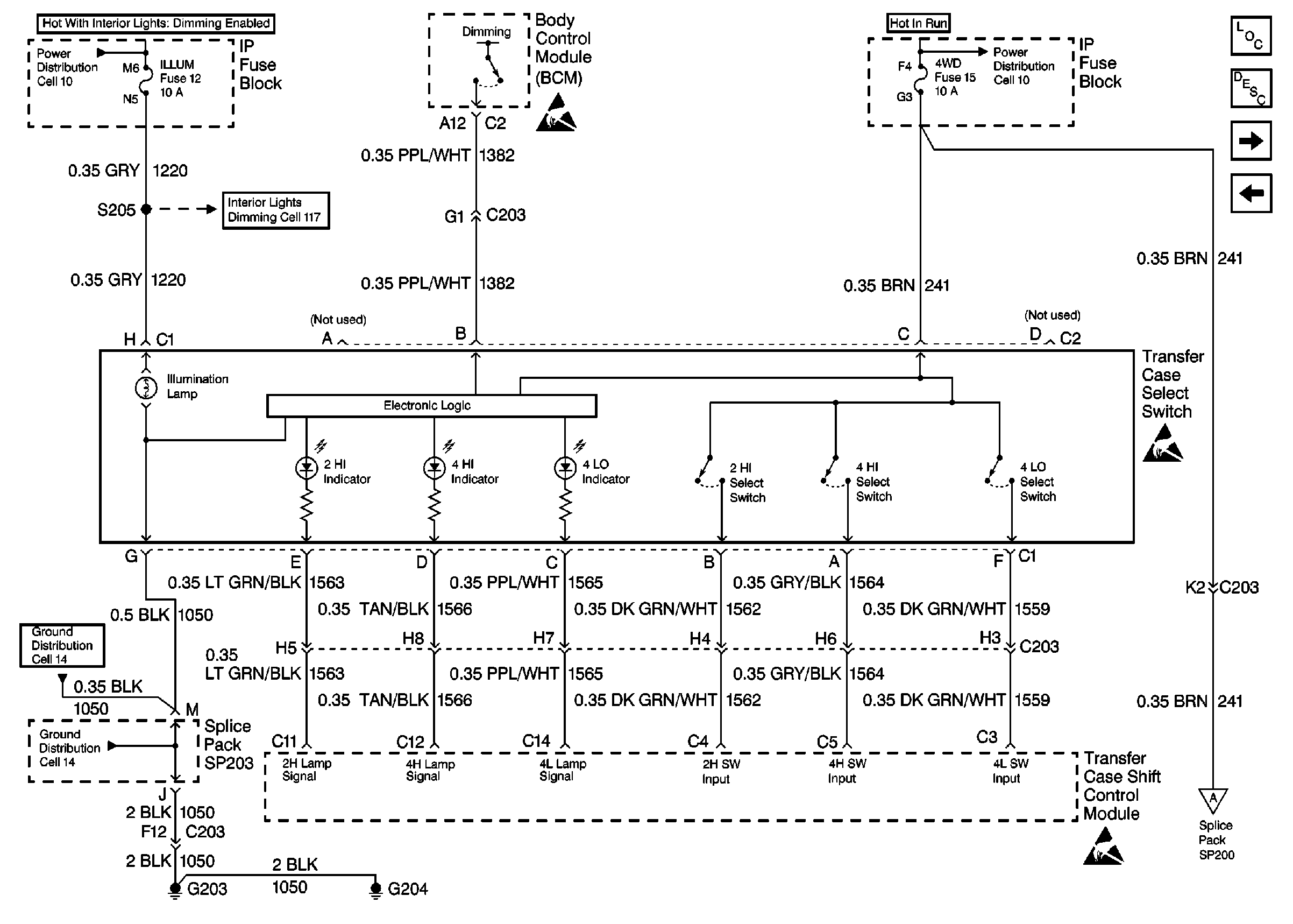
🢒 Cell 38: Transfer Case Select Switch
Cell 38: Transfer Case Select Switch
Cell 38: Transfer Case Select Switch
Cell 10: ILLUM, PARK LP Fuses
Cell 117: ILLUM Fuse 12
Handling ESD Sensitive Parts Notice
Cell 14: G203 and G204 (Pickup)
Cell 14: G203 and G204 (Pickup)
Handling ESD Sensitive Parts Notice
Cell 38: Front Axle Switch and VCM
Cell 10: 4WD Fuse (4.3L)
Handling ESD Sensitive Parts Notice
Transfer Case Control Components
Transfer Case Description
Cell 38: Front Axle Switch and VCM
Cell 38: Electric Shift Transfer Case