GM Service Manual Online
For 1990-2009 cars only
Makes
🢒
HUMMER
🢒
2007
🢒
H2
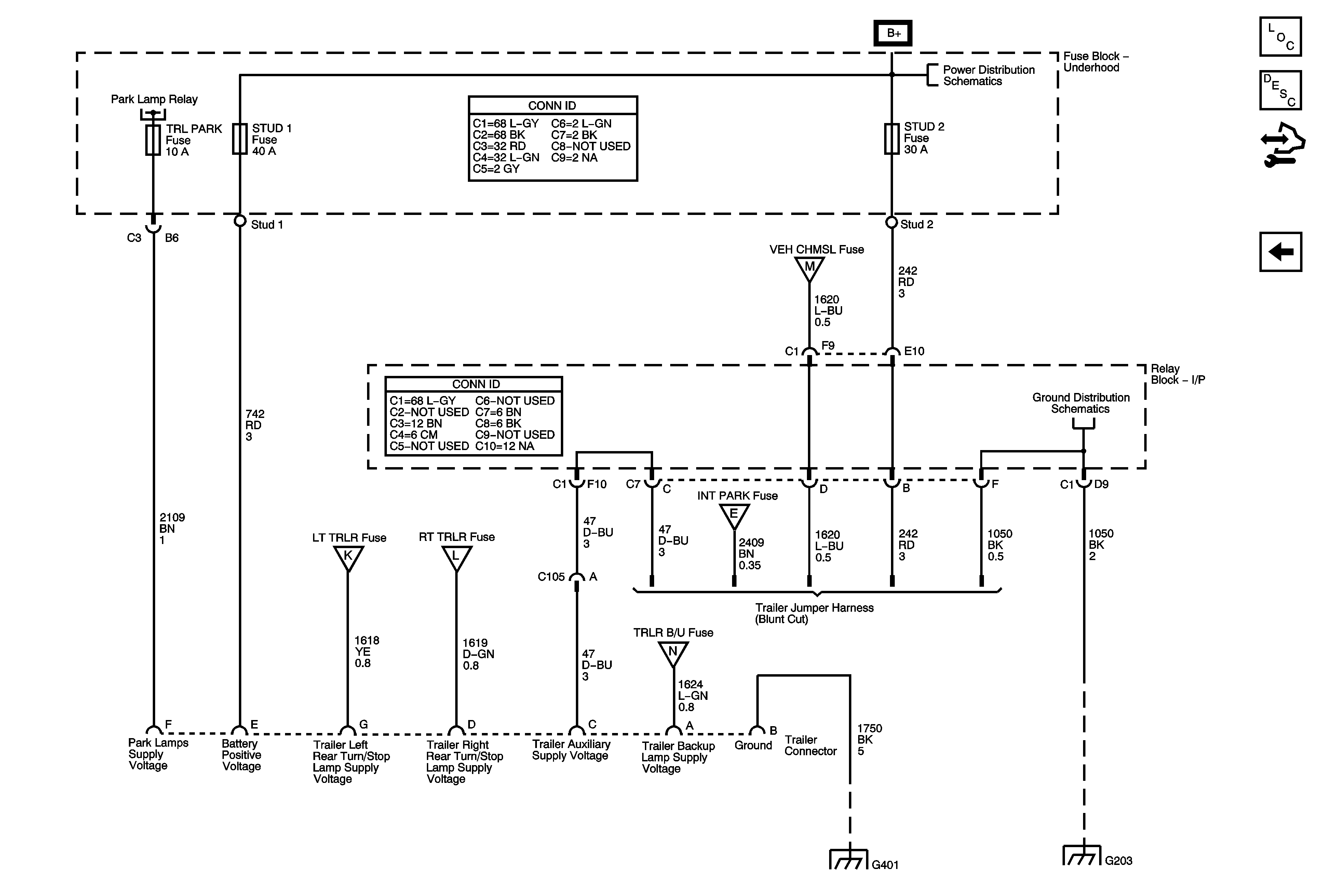
🢒 Trailer Lighting Provisions
Trailer Lighting Provisions
Trailer Lighting Provisions
Master Electrical Component List
Exterior Lighting Systems Description and Operation
Control Module References
Backup Lamps
Park Lamp Relay, Front Park, and Marker Lamps
Stop Lamps
B+ Bus
G203 - 2 of 3
G203 - 1 of 3
G300, G310, G401, and G403
Roof Lamps - Front
Backup Lamps
Stop Lamps