GM Service Manual Online
For 1990-2009 cars only
Makes
🢒
Saturn
🢒
2007
🢒
OUTLOOK - FWD
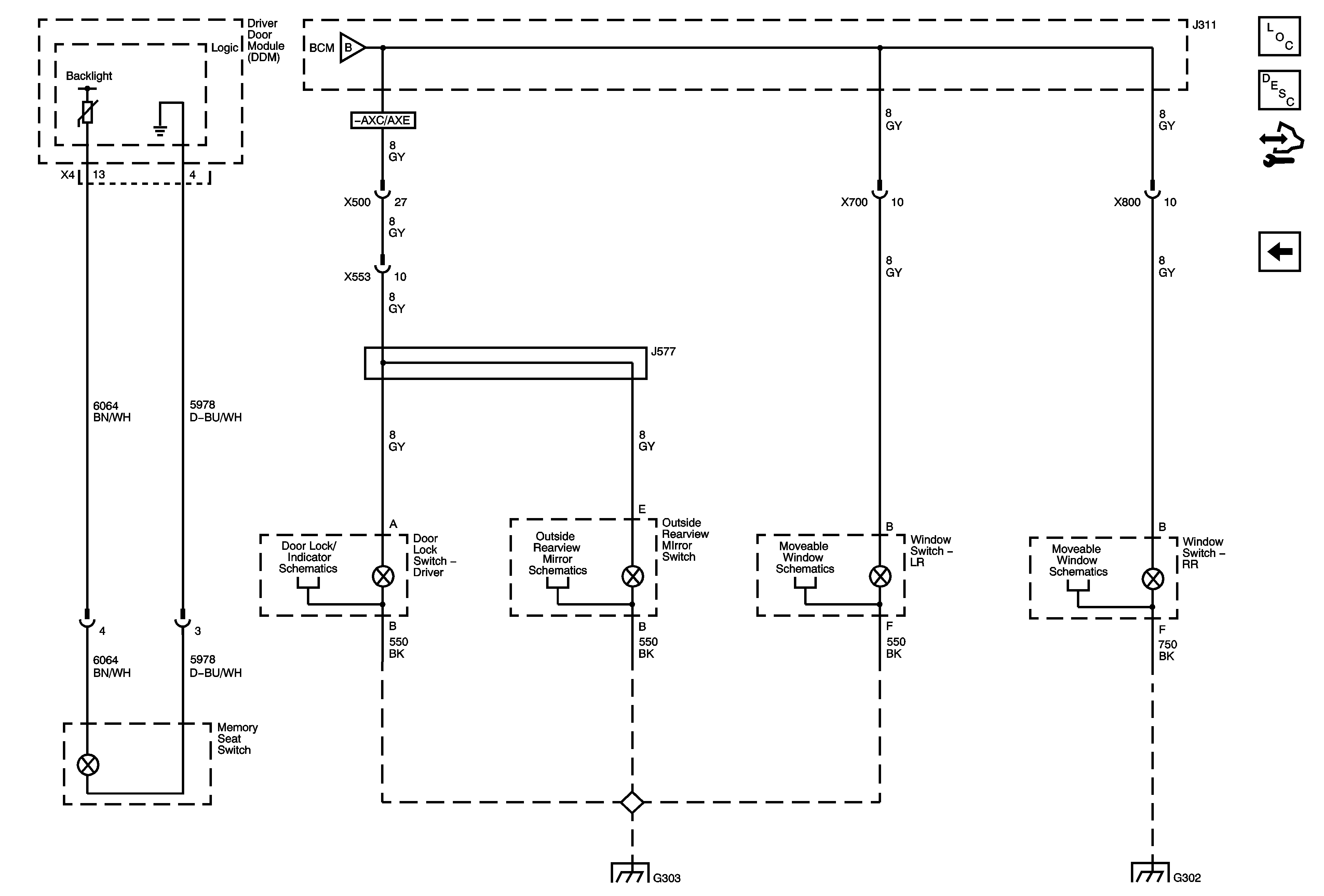
🢒 Driver, LR, and RR Door Lamps
Driver, LR, and RR Door Lamps
Driver, Left Rear, and Right Rear Door Lamps
Master Electrical Component List
Interior Lighting Systems Description and Operation
Control Module References
Console, I/P, Passenger Door, and Roof Lamp
Console, I/P, Passenger Door, and Roof Lamp
Switches
DG6/DS3
DG6/DS3
Rear
Rear
G303 1 of 2
G302 1 of 3