GM Service Manual Online
For 1990-2009 cars only
Makes
🢒
Cadillac
🢒
2007
🢒
Escalade EXT
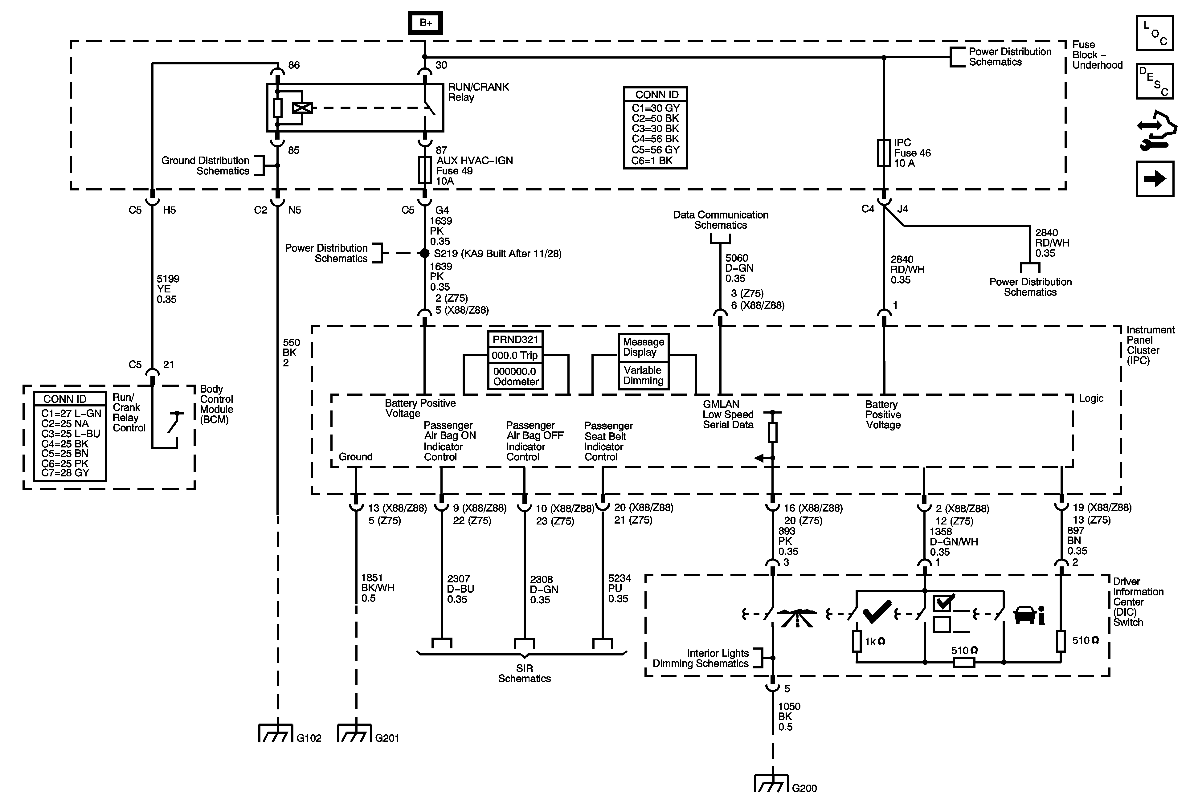
🢒 Power, Ground, and Driver Information Center Switch
Power, Ground, and Driver Information Center Switch
Power, Ground, and Driver Information Controls
Master Electrical Component List
Instrument Cluster Description and Operation
Control Module References
Indicators
G102 and G108
RUN/CRANK Bus - AUX HVAC - IGN and HVAC - IGN Fuses
Low Speed Bus - SP200 - 1 of 3
G102 and G108
G201
Passenger Presence System - 1 of 2
Dimming Control and LED Dimming - 1 of 3
G200 - 1 of 2
ECM-BATT, HEADLAMP WASH, HVAC BATT, IPC, LTR, S/ROOF, and TCM-BATT Fuses
B+ Bus - 1 of 3