GM Service Manual Online
For 1990-2009 cars only
Makes
🢒
Pontiac
🢒
2005
🢒
GTO
🢒
Body
🢒
Wiring Systems
🢒 Antilock Brake System Schematics
Figure
1:
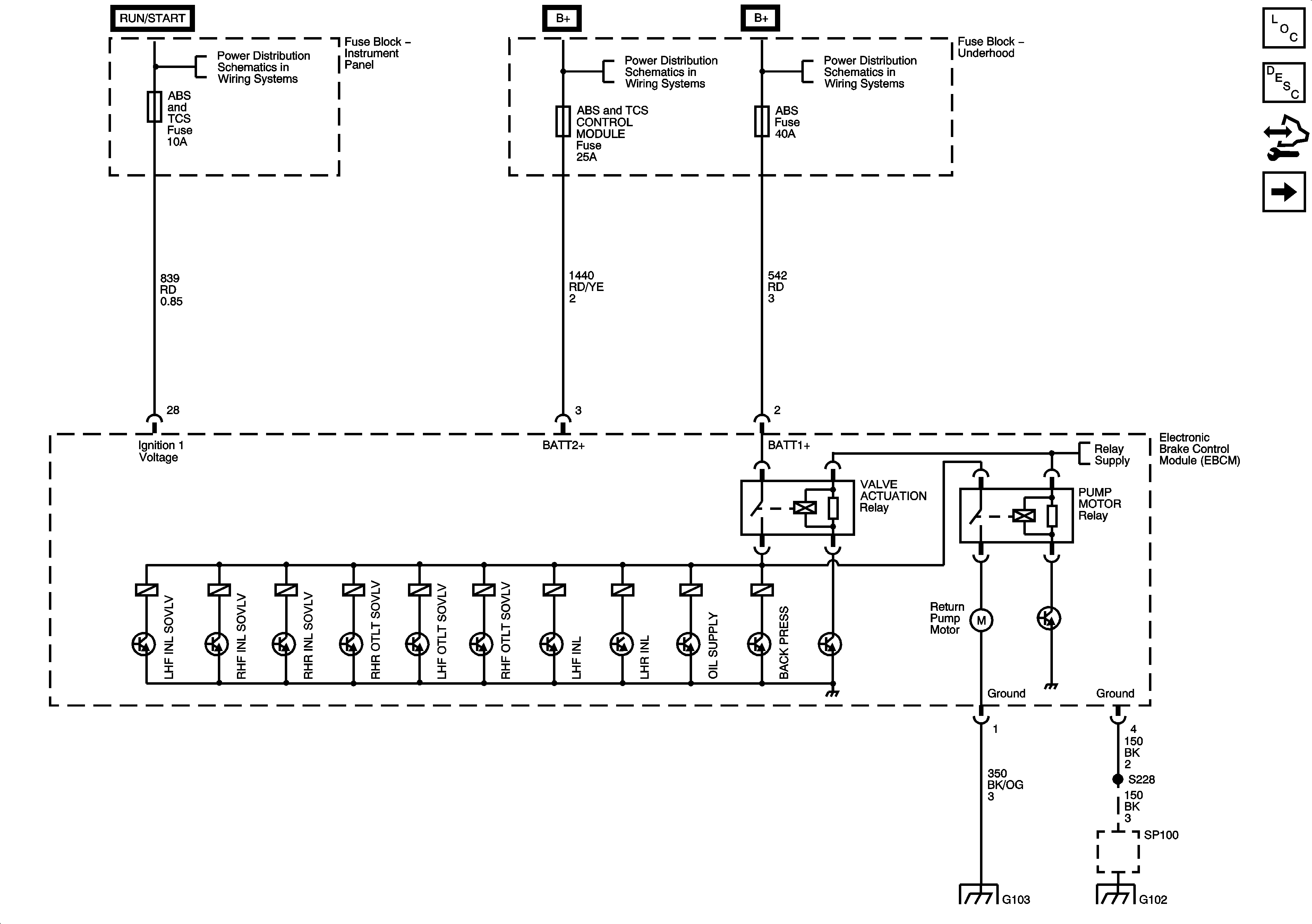
Electronic Brake Control Module (EBCM) Power and Ground
Master Electrical Component List
ABS Description and Operation
Control Module References
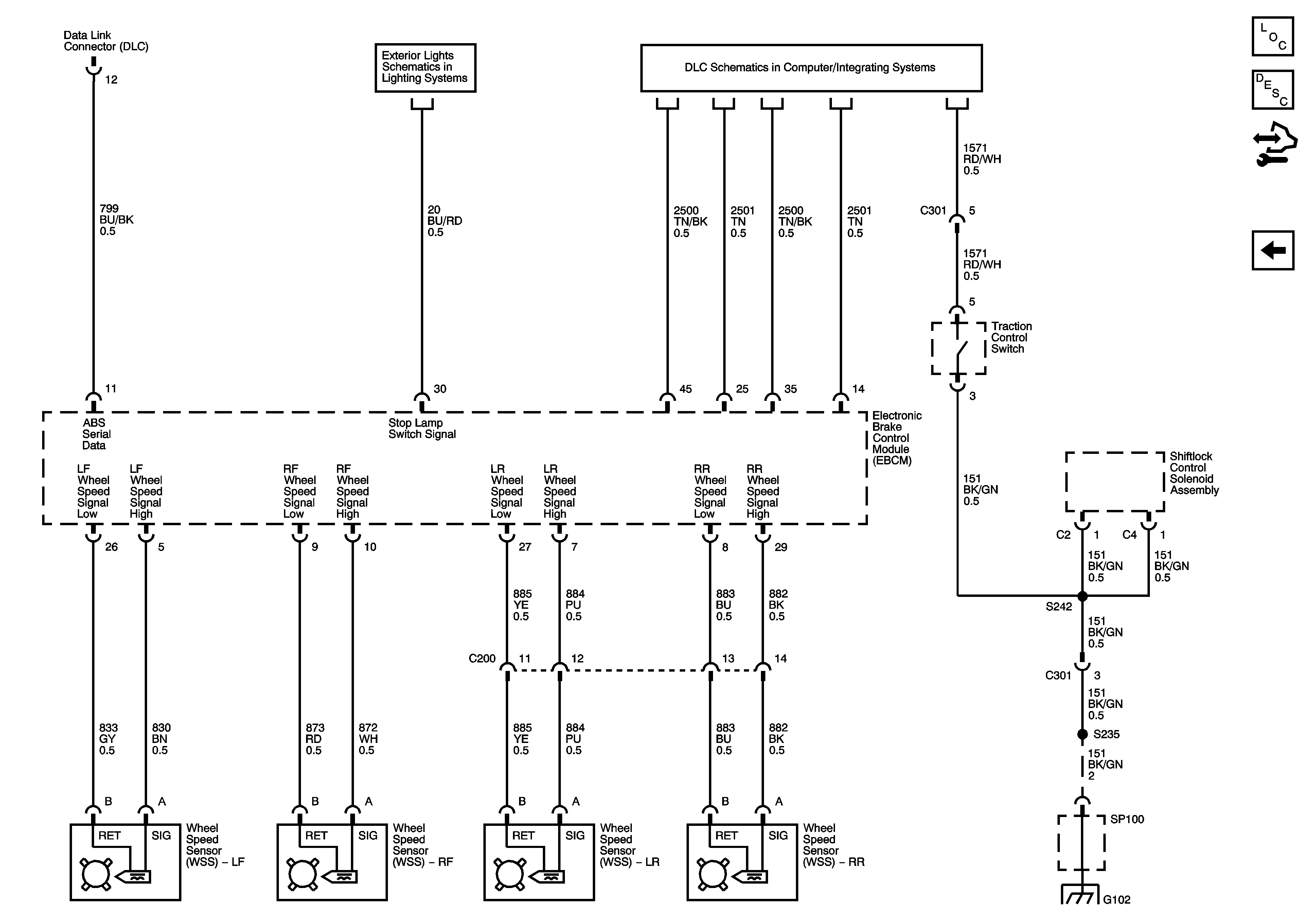
Wheel Speed Sensors, DLC
Stop Lamps
Data Link Connector - 2 of 2
SP100 and G102 4 of 5
Figure
2:
Wheel Speed Sensors, DLC
Master Electrical Component List
ABS Description and Operation
Control Module References
Electronic Brake Control Module (EBCM) Power and Ground
Ignition Control Relay, ABS and TCS, SRS, CIGAR LIGHTER, CRUISE CONTROL, POWER MIRROR and SHIFTLOCK CONTROL Fuses
ENGINE, FUEL PUMP, and BCM/ENGINE CONTROL Fuses
Battery, RAD FAN LARGE, LIGHTING, and ABS Fuses
SP100 and G102 - 5 of 5, G103 and G200
G100, G101, SP100 and G102 1 of 5