GM Service Manual Online
For 1990-2009 cars only
Figure 1:

Module Power, Ground, Serial Data, and MIL


Object Number: 1430604  Size: FS
Master Electrical Component List
Powertrain Control Module Description
Control Module References
Engine Data Sensors - 5-Volt and Low Reference
OBD II Symbol Description Notice
B+ Bus - Underhood Fuse Block
Ignition Switch - ACCY/RUN and RUN/START Bus Bars, IGN B Fuse
Ignition Switch - ACCY/RUN/START, RUN, and START Bus Bars, IGN A and CRANK Fuses
AIR, COILS, EAP, ECM, HDM, HI HDLP-LT, HI HDLP-RT, LOW HDLP-RT, LOW HDLP-LT, PCMB, and TCB1 Fuses
AIR SOL and PCMI Fuses - 4.2L
BACK UP, BTSI, IGNE, TBC IGN1, and TRLR B/U Fuses
FRT WPR, IGN 0, RAIN, TBC ACC, TBC IG, and TCM Fuses
AIR SOL and PCMI Fuses - 4.2L
Power, Ground, Serial Data, and MIL
BACK UP, BTSI, IGNE, TBC IGN1, and TRLR B/U Fuses
FRT WPR, IGN 0, RAIN, TBC ACC, TBC IG, and TCM Fuses
G101, G103, G106, and G110
Power, Ground, Data Link Connector
Power, Ground, Data Link Connector
Figure 2:

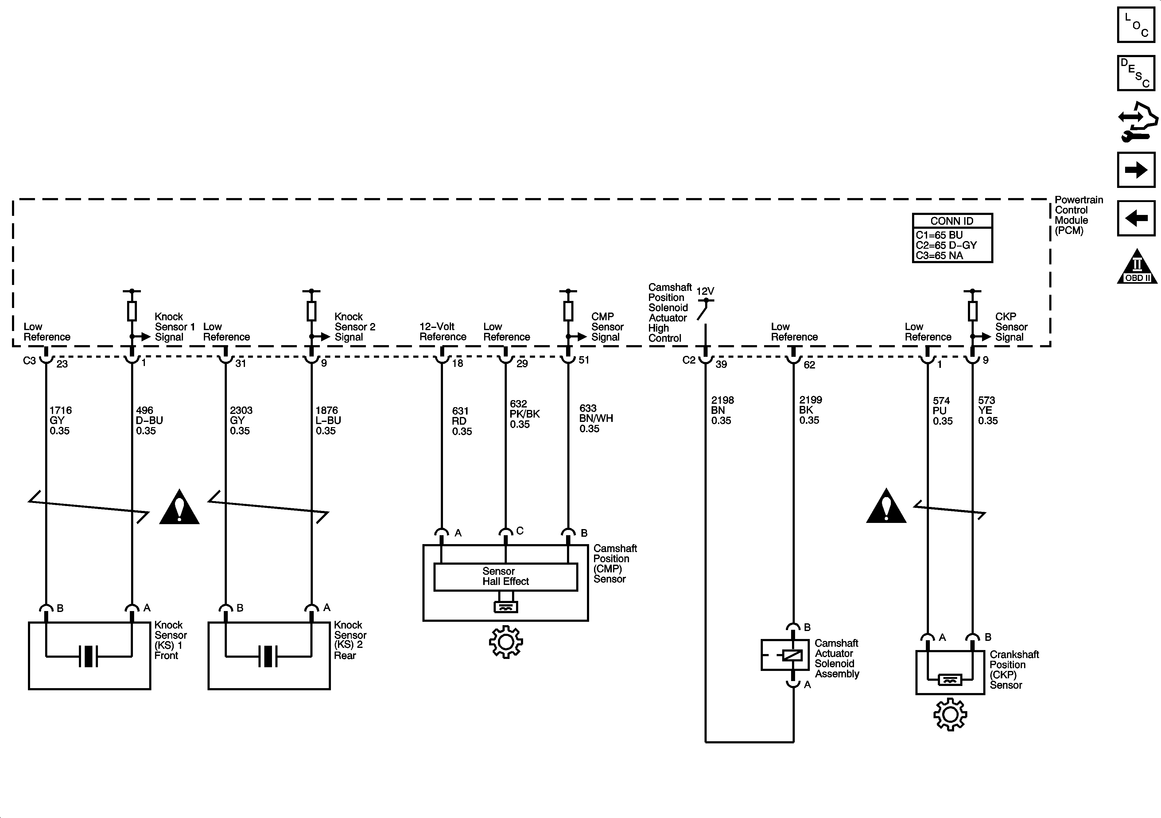
Engine Data Sensors - 5-Volt and Low Reference


Object Number: 1430606  Size: FS
Master Electrical Component List
Powertrain Control Module Description
Control Module References
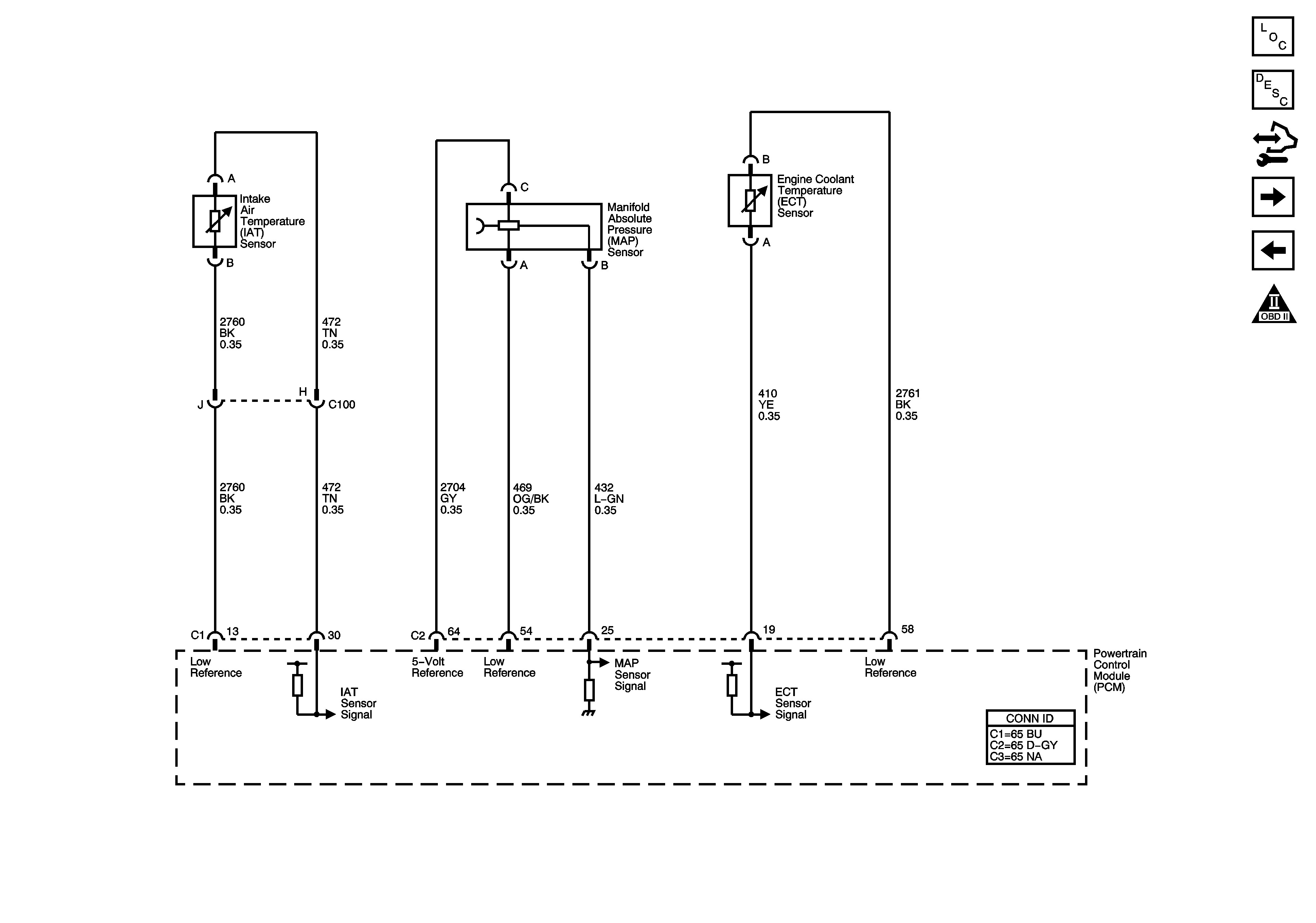
Engine Data Sensors - Pressure and Temperature
Module Power, Ground, Serial Data, and MIL
OBD II Symbol Description Notice
Figure 3:

Engine Data Sensors - Pressure and Temperature


Object Number: 1430608  Size: FS
Master Electrical Component List
Air Intake System Description
Control Module References
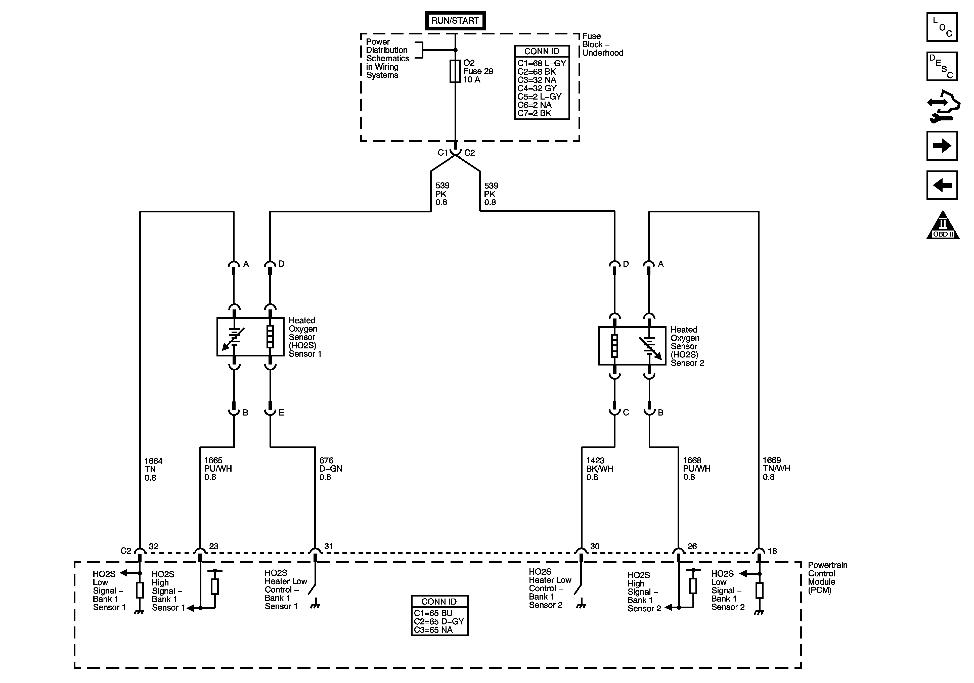
Engine Data Sensors - Oxygen Sensors
Engine Data Sensors - 5-Volt and Low Reference
OBD II Symbol Description Notice
Figure 4:

Engine Data Sensors - Oxygen Sensors


Object Number: 1430612  Size: FS
Master Electrical Component List
Powertrain Control Module Description
Control Module References
Engine Data Sensors - Throttle Actuator Controls and VSS
Engine Data Sensors - Pressure and Temperature
OBD II Symbol Description Notice
Ignition Switch - ACCY/RUN and RUN/START Bus Bars, IGN B Fuse
Figure 5:

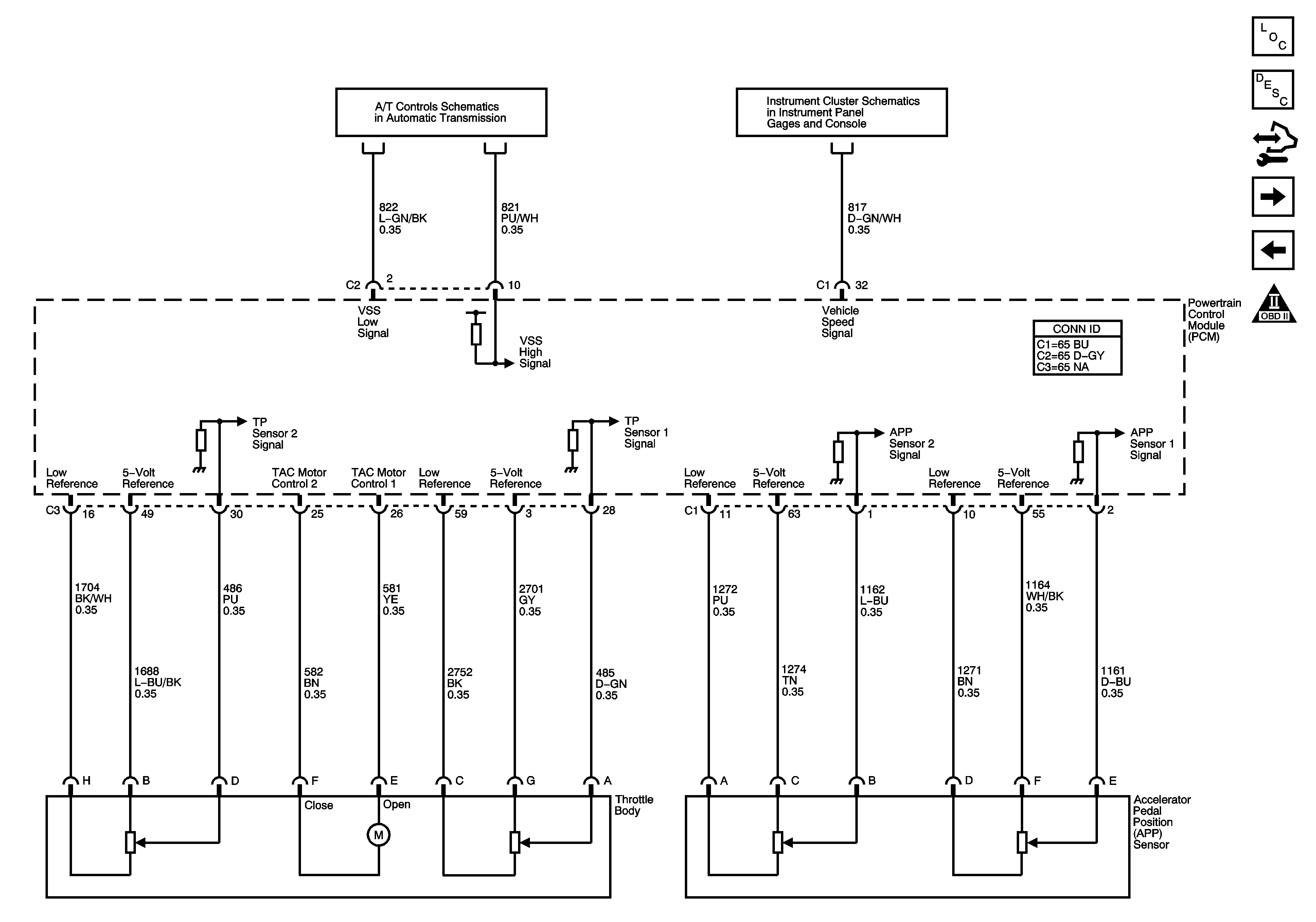
Engine Data Sensor - Throttle Actuator Controls and VSS


Object Number: 1430614  Size: FS
Master Electrical Component List
Powertrain Control Module Description
Control Module References
Ignition Controls - Ignition System
Engine Data Sensors - Oxygen Sensors
OBD II Symbol Description Notice
Pressure Controls, Temperature, and VSS
Gages
Figure 6:

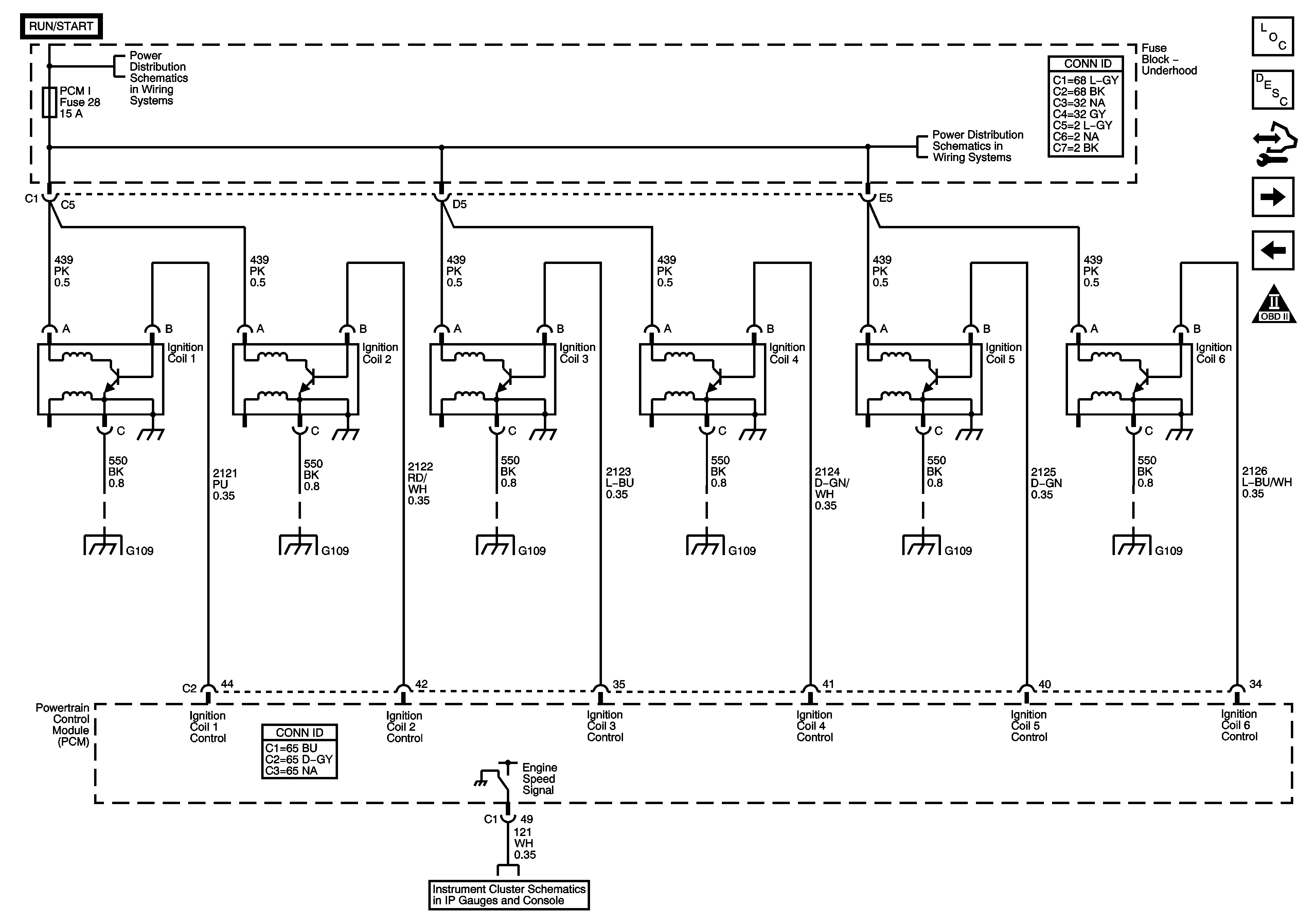
Ignition Controls - Ignition System


Object Number: 1430618  Size: FS
Master Electrical Component List
Powertrain Control Module Description
Control Module References
Ignition Controls - Sensors
Engine Data Sensors - Throttle Actuator Controls and VSS
OBD II Symbol Description Notice
Ignition Switch - ACCY/RUN and RUN/START Bus Bars, IGN B Fuse
AIR SOL and PCMI Fuses - 4.2L
G109
G109
G109
G109
G109
G109
Gages
Figure 7:

Ignition Controls - Sensors


Object Number: 1430620  Size: FS
Master Electrical Component List
Electronic Ignition (EI) System Description
Control Module References
Fuel Controls - Fuel Pump Controls and Fuel Injectors
Ignition Controls - Ignition System
OBD II Symbol Description Notice
Engine Controls Schematic Icons
Engine Controls Schematic Icons
Figure 8:

Fuel Controls - Fuel Pump Controls and Fuel Injectors


Object Number: 1430622  Size: FS
Master Electrical Component List
Fuel System Description
Control Module References
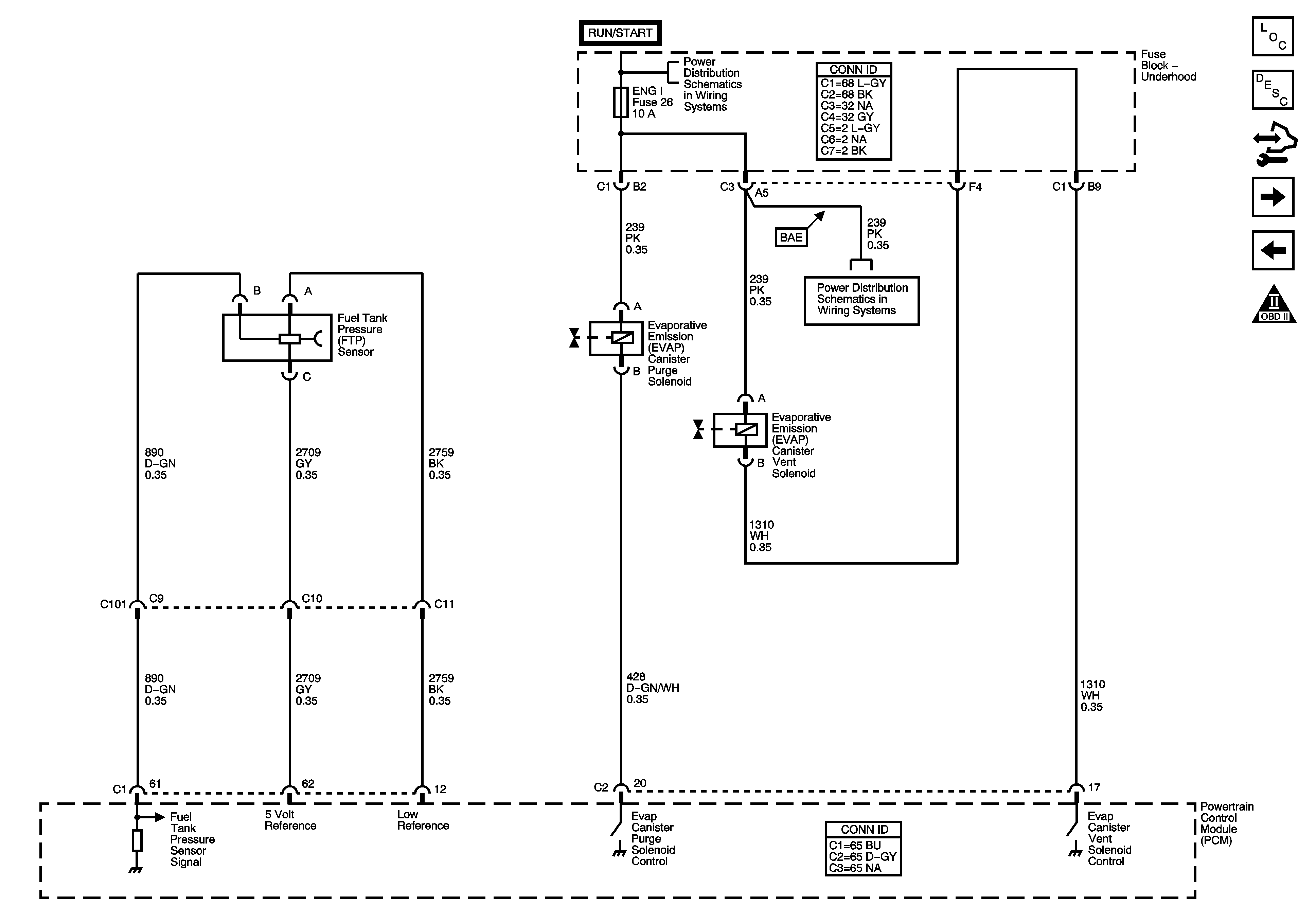
Fuel Controls - EVAP Controls
Ignition Controls - Sensors
OBD II Symbol Description Notice
Ignition Switch - ACCY/RUN and RUN/START Bus Bars, IGN B Fuse
B+ Bus - Underhood Fuse Block
AIR, COILS, EAP, ECM, HDM, HI HDLP-LT, HI HDLP-RT, LOW HDLP-RT, LOW HDLP-LT, PCMB, and TCB1 Fuses
G104, G105, and G107
AIR SOL and PCMI Fuses - 4.2L
AIR SOL and PCMI Fuses - 4.2L
Fuel Gage
G201 - 2 of 2 and G305
Figure 9:

Fuel Controls - EVAP Controls


Object Number: 1430623  Size: FS
Master Electrical Component List
Evaporative Emission Control System Description
Control Module References
Device Controls
Fuel Controls - Fuel Pump Controls and Fuel Injectors
OBD II Symbol Description Notice
Ignition Switch - ACCY/RUN and RUN/START Bus Bars, IGN B Fuse
4WD, ENG I, HVAC, O2, SIR, and TAC Fuses
Figure 10:

Device Controls


Object Number: 1430626  Size: FS
Master Electrical Component List
Secondary Air Injection System Description
Control Module References
Controlled/Monitored Subsystem References
Fuel Controls - EVAP Controls
OBD II Symbol Description Notice
B+ Bus - Underhood Fuse Block
Ignition Switch - ACCY/RUN and RUN/START Bus Bars, IGN B Fuse
G201 - 2 of 2 and G305
G104, G105, and G107
Figure 11:

Controlled/Monitored Subsystem References


Object Number: 1430627  Size: FS
Master Electrical Component List
Powertrain Control Module Description
Control Module References
Transmission Control References - A/T
Device Controls
OBD II Symbol Description Notice
Compressor Controls
Compressor Controls
Cruise Control 4.2L
Starting System
Charging System
Gages
Power, Ground, Serial Data, and Transfer Case Encoder Motor
Cooling Fan Controls
EBCM Power, Ground, Serial Data, Indicator, and Signal Circuits
Figure 12:

Transmission Control References - A/T


Object Number: 1430629  Size: FS
Master Electrical Component List
Powertrain Control Module Description
Control Module References
Controlled/Monitored Subsystem References
OBD II Symbol Description Notice
Shift Controls and Stop Lamp Switch
EBCM Power, Ground, Serial Data, Indicator, and Signal Circuits
PNP Switch, 4WD Signal, Serial Data, and Indicator